Exhibit 10.7
THE IRVINE COMPANY
RETAIL LEASE
Yoshiharu Japanese Ramen
Orchard Hills Shopping Center
RETAIL LEASE
THIS RETAIL LEASE and all exhibits attached hereto (collectively, “Lease”) is entered into by Landlord and Tenant and is effective as of December 30, 2020 (“Lease Date”).
ARTICLE 1
BASIC LEASE PROVISIONS
| 1.1 | Landlord: IRVINE ORCHARD HILLS RETAIL LLC, a Delaware limited liability company (“Landlord”). | ||
| 1.2 | Tenant: YOSHIHARU IRVINE, a California corporation (“Tenant”). | ||
| 1.3 | Trade Name: Yoshiharu Japanese Ramen (“Trade Name”). | (Art. 7) | |
| 1.4 | Shopping Center: Orchard Hills Shopping Center, located in the City of Irvine, State of California (“Shopping Center”). | (Art. 2) | |
| 1.5 | Premises Address: 3935 Portola Parkway, Irvine, CA 92602 (“Premises”). | (Art. 2) | |
| 1.6 | Floor Area: Approximately 1,420 square feet, determined in accordance with Section 21.15 (“Floor Area”). | (Art. 21) | |
| 1.7 | Lease Term (“Term”): Beginning on the date (“Commencement Date”) that is the earlier of (i) the date Tenant opens for business to the public in the Premises and (ii) the expiration of 150 days following the date of Landlord’s Notice to Tenant that the Premises are vacant and Tenant is entitled to possession of the Premises upon satisfaction of the Delivery Requirements set forth in Exhibit C (“Delivery Notice”) and ending on the last day of the month 120 months thereafter unless sooner terminated as provided in this Lease (“Expiration Date”). | (Art. 2) | |
| 1.8 | Base Rent (“Base Rent”): | (Art. 3) |
| Months | Rent PSF | Monthly Rent | Annual Rent | |||||||||
| 1 to 12 | $ | 52.00 | $ | 6,153.33 | $ | 73,840.00 | ||||||
| 13 to 24 | $ | 53.56 | $ | 6,337.93 | $ | 76,055.20 | ||||||
| 25 to 36 | $ | 55.17 | $ | 6,528.45 | $ | 78,341.40 | ||||||
| 37 to 48 | $ | 56.83 | $ | 6,724.88 | $ | 80,698.60 | ||||||
| 49 to 60 | $ | 58.53 | $ | 6,926.05 | $ | 83,112.60 | ||||||
| 61 to 72 | $ | 60.29 | $ | 7,134.32 | $ | 85,611.80 | ||||||
| 73 to 84 | $ | 62.10 | $ | 7,348.50 | $ | 88,182.00 | ||||||
| 85 to 96 | $ | 63.96 | $ | 7,568.60 | $ | 90,823.20 | ||||||
| 97 to 108 | $ | 65.88 | $ | 7,795.80 | $ | 93,549.60 | ||||||
| 109 to 120 | $ | 67.86 | $ | 8,030.10 | $ | 96,361.20 | ||||||
| 1.9 | Percentage Rent (“Percentage Rent”): |
Percentage Rent is payable for each calendar year that Tenant’s Gross Sales (see Exhibit D) for such year exceed the applicable Gross Sales threshold described in Section 1.9(a) below (“Breakpoint”), and shall equal the amount of such Gross Sales in excess of the Breakpoint multiplied by the Percentage Rate set forth in Section 1.9(b) below.
| (a) | Breakpoint: |
| Months | Breakpoint | |||
| 1 to 12 | $ | 1,500,000.00 | ||
| 13 to 24 | $ | 1,545,000.00 | ||
| 25 to 36 | $ | 1,591,350.00 | ||
| 37 to 48 | $ | 1,639,090.50 | ||
| 49 to 60 | $ | 1,688,263.22 | ||
| 61 to 72 | $ | 1,738,911.11 | ||
| 73 to 84 | $ | 1,791,078.44 | ||
| 85 to 96 | $ | 1,844,810.80 | ||
| 97 to 108 | $ | 1,900,155.12 | ||
| 109 to 120 | $ | 1,957,159.78 | ||
| (b) | Percentage Rate: 7.00% (“Percentage Rate”). |
(Art. 3)
| 1.10 | Use of Premises: The Premises shall be used for the operation of a first-class Japanese restaurant specializing in ramen-based cuisine. Tenant will be permitted to offer other dishes; all in accordance with the menu attached hereto as Exhibit J (the “Menu”). Tenant shall also be permitted to sell alcoholic beverages for on-Premises consumption only, provided Tenant obtains, at Tenant’s sole cost and expense, any and all necessary and required permits, licenses and/or governmental approvals (Tenant will provide Landlord copies of all such permits, licenses and governmental approvals promptly upon receipt). Tenant may make minor changes to the Menu from time to time, provided that (1) the items offered on such revised menu and the original theme and concept of the restaurant remain substantially the same as that which is in existence as of the Commencement Date, and (2) such minor changes do not violate any exclusive use in the Shopping Center (“Permitted Use”). | (Art. 7) |
-2- |
| 1.11 | Radius Restriction: 5.00 miles, measured from the closest point on the perimeter of the Shopping Center to the “Other Business” (as defined in Section 7.4) (“Radius Restriction Area”). | (Art. 7) | |
| 1.12 | (Art. 11) | ||
| (a) Initial Promotional Assessment: A one-time charge equal to $2,500.00 (“Initial Promotional Assessment”). | |||
| (b) Promotional Charge: An annual charge equal to $1.50 per square foot of the Floor Area of the Premises (“Promotional Charge”). | |||
| 1.13 | Minimum Insurance Limits: Two Million Dollars ($2,000,000.00). | (Ex. F) | |
| 1.14 | Security Deposit: $6,768.66 (“Security Deposit”). | (Art. 18) | |
| 1.15 | Guarantor(s): James Chae and Jennie Y. Chae, husband and wife, jointly and severally (“Guarantor”). | (Ex. I) | |
| 1.16 | Tenant’s Share (“Tenant’s Share”): A fraction, the numerator of which is the Floor Area of the Premises, and the denominator of which is the following, as applicable, in each case determined as of the commencement of the applicable fiscal year: | (Art. 9) (Ex. F) |
(a) For Common Area Expenses (described in Section 9.3), the greater of (i) the Floor Area in the Shopping Center occupied by tenants, excluding Floor Area occupied by “Other Stores” (as defined in Section 9.4), and (ii) the product obtained by multiplying eighty-five percent (85%) by the Floor Area in the Shopping Center, and subtracting from the result the Floor Area occupied by Other Stores; and
(b) For Taxes (described in Section 5.1(a)), the greater of (i) the Floor Area in the parcel(s) covered by the tax bill(s) in question (“Larger Parcel”) occupied by tenants who do not pay Taxes directly to the taxing authority, and subtracting from the result the Floor Area occupied by Other Stores, and (ii) the product obtained by multiplying eighty-five percent (85%) by the Floor Area in the Larger Parcel, and subtracting from the result the Floor Area occupied by Other Stores and the Floor Area of tenants who pay Taxes directly to the taxing authority.
The Floor Area of any management and/or security offices, postal facilities, storage areas and/or parking structures located or to be located in the Shopping Center (collectively, “Common Facilities”) shall be excluded when calculating the above denominators.
| 1.17 | Broker(s): | (a) | Irvine Management Company, representing Landlord exclusively; and | (Art. 21) |
| (b) | Roy Chin/New Star Realty, representing Tenant exclusively. | |||
| 1.18 | Addresses for “Notice” (defined in Article 20) and Payments: | |||
| LANDLORD | TENANT | |
| Landlord’s Address for Notice and Payment of Initial Charges: | Tenant’s Address for Notice: | |
| IRVINE ORCHARD HILLS RETAIL LLC | YOSHIHARU IRVINE | |
| c/o The Irvine Company LLC 110 Innovation | 6940 Beach Blvd., #D-413 | |
| Irvine, California 92617 | Buena Park, CA 90621 | |
| Attention: General Counsel, Retail Properties |
| with copy to: | ||
| The Irvine Company LLC 101 Innovation | ||
| Irvine, California 92617 | ||
| Attention: Accounting Department | ||
| Tenant Payment Portal Registration: | Tenant’s Address for Statements /Billings: | |
| Email tenantportal@irvinecompany.com to request an account for the Tenant Payment Portal | YOSHIHARU IRVINE 6940 Beach Blvd., #D-413 Buena Park, CA 90621 |
| 1.19 | Architectural Review Fee: $500.00 which fee is intended to cover the cost of review of plans by Landlord for the initial construction of the Premises and is due and payable upon Tenant’s execution of this Lease. | (Ex. C) | ||
| 1.20 | (a) | Construction Deposit: $5,000.00 | (Ex. C) | |
| (b) | Signage Deposit: $2,500.00 | |||
| 1.21 | Delayed Opening Rent: $250.00 per day. | (Art. 3) | ||
| 1.22 | Tenant Improvement Allowance: $60.00 per square foot of Premises Floor Area. | |||
In the event of a conflict between this Article 1 and the rest of the Lease, the rest of the Lease shall control.
-3- |
ARTICLE 2
LEASE OF PREMISES; RESERVATIONS
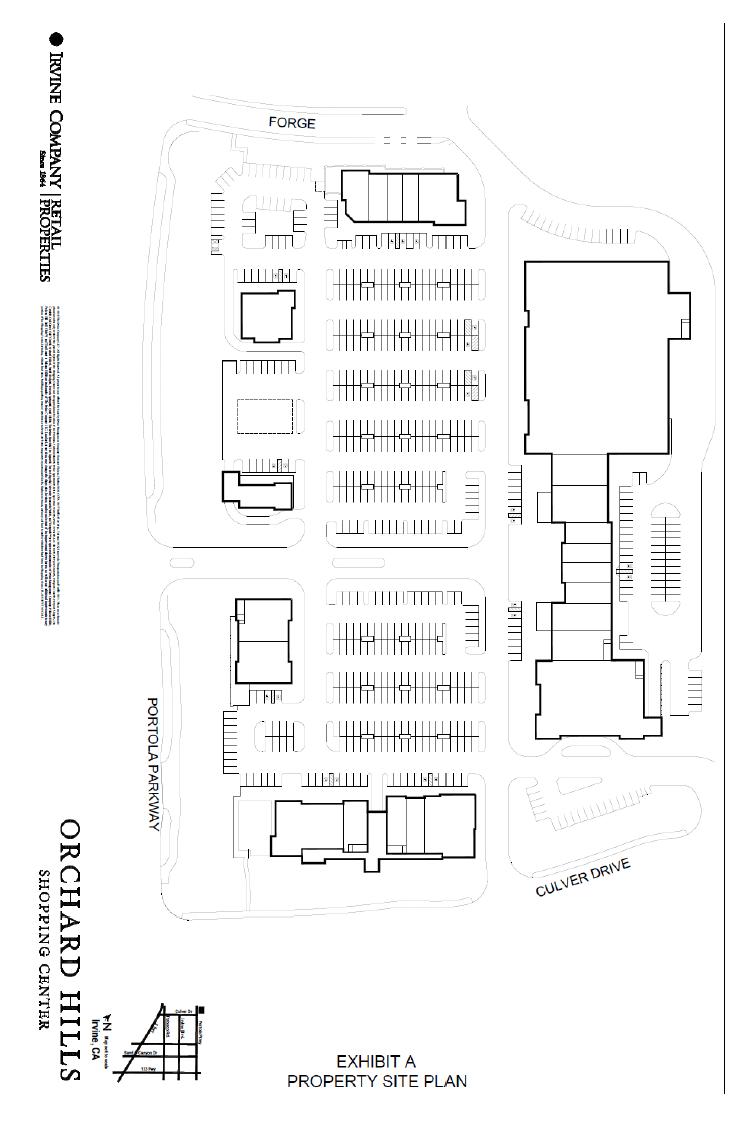
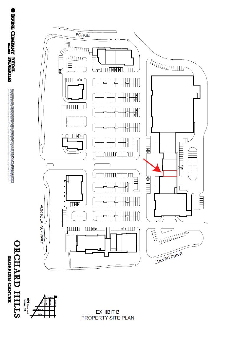
2.1 LEASE OF PREMISES. Landlord hereby leases to Tenant, and Tenant hereby leases from Landlord, for the Term described herein, the Premises identified in Section 1.5 and located in the Shopping Center depicted on the Shopping Center Site Plan attached as Exhibit A. The Premises are deemed to contain the Floor Area set forth in Section 1.6, are generally depicted on the Premises Site Plan attached as Exhibit B and are being delivered to Tenant in accordance with Exhibit C. All of Tenant’s Work and any other construction by Tenant on the Premises must be performed in accordance with Exhibit C. Landlord has no obligation to deliver physical possession of the Premises to Tenant until Tenant has satisfied the Delivery Requirements specified in Exhibit C. Tenant’s failure to satisfy the Delivery Requirements shall not delay the determination of the Commencement Date.
2.2 RESERVATIONS. Exhibit A sets forth an approximate general layout of the Shopping Center and shall not be deemed a representation by Landlord that the Shopping Center is or will be constructed as indicated thereon, nor as a representation or warranty as to the current or future occupancy of any particular tenant in the Shopping Center, or that the Shopping Center will not be expanded, reduced or otherwise modified. Landlord reserves the right at any time to (i) make alterations or additions to the building in which the Premises are contained (“Building”); (ii) construct other buildings or improvements in the Shopping Center and to make alterations or additions thereto; and (iii) access and use the exterior walls, floor, roof and plenum in, above and below the Premises for the purpose of effecting certain items of repair and maintenance as provided in this Lease.
ARTICLE 3
RENT
Tenant shall pay to Landlord as “Rent” hereunder, without Notice, demand, offset or deduction, all of the following:
3.1 BASE RENT. Beginning on the Commencement Date, Tenant shall pay the Base Rent specified in Section 1.8, monthly, in advance, on or before the first day of each month. Upon execution of this Lease, Tenant shall pay the first monthly installment of Base Rent. Base Rent for any partial month shall be prorated based on the number of days in the applicable calendar month.
3.2 PERCENTAGE RENT. Beginning on the Commencement Date, Tenant shall pay Percentage Rent as determined pursuant to Section 1.9 on a calendar year basis. For each calendar year during the Term, Percentage Rent is due beginning on the tenth (10th) day after the end of the first month that Gross Sales have reached the Breakpoint (defined in Section 1.9(a)) and each month thereafter. Within ten (10) days after the end of each calendar month, Tenant shall deliver to Landlord a certified statement of Gross Sales in the form of Exhibit D. Within twenty (20) days after the end of each calendar year, Tenant shall deliver to Landlord a certified annual statement, including a monthly breakdown of Gross Sales, in the form of Exhibit D (“Annual Statement”). Landlord shall review Tenant’s Annual Statement and shall reconcile the amount of Gross Sales reported therein with the cumulative amount of monthly Gross Sales previously reported to Landlord; any under or overpayment shall be promptly paid or credited, as applicable. “Gross Sales” shall have the meaning set forth in Exhibit D. The Breakpoint for any partial year shall be prorated based upon a three hundred sixty-five (365) day year. If Base Rent is abated or reduced for any reason during any calendar year, the Breakpoint for such calendar year shall be reduced proportionately. If two Breakpoint amounts are in effect during different portions of a given calendar year, the Breakpoint for such calendar year shall be the weighted average of both Breakpoint amounts, determined as follows: (a) each Breakpoint amount shall be multiplied by the number of days during which it is in effect, and then divided by 365, and (b) the amounts so computed shall be added to obtain the weighted average Breakpoint for such calendar year.
3.3 ADDITIONAL RENT. Any monetary amount required to be paid by Tenant to Landlord in addition to Base Rent and Percentage Rent, whether or not such sums are designated as “Rent,” shall be included in Rent and referred to in this Lease as “Additional Rent.”
3.4 DELAYED OPENING RENT. If Tenant fails to timely open for business in accordance with Section 7.2 below, Tenant shall pay to Landlord, as liquidated damages and Additional Rent, and in addition to Base Rent, the amount set forth in Section 1.21 for each day Tenant is not open for business in the Premises following the Commencement Date (“Delayed Opening Rent”). Delayed Opening Rent accruing during any month of the Term shall be paid concurrently with Tenant’s installment of Base Rent next due.
ARTICLE 4
TENANT FINANCIAL DATA
4.1 RECORDATION OF SALES. At the time of a sale or other transaction, Tenant shall record the sale or other transaction either in a cash register or computer with sealed continuous tape or by using another method of recording sequentially numbered purchases and keeping a cumulative total, such as a point of sale cash register system or future digital technology devices, approved by Landlord. For a period of three (3) years following the delivery of its certified Annual Statement for each year, Tenant shall keep full and accurate books and records of all transactions from the Premises pertaining to Gross Sales and exclusions thereof in accordance with generally accepted retail practices and generally accepted accounting principles consistently applied. Tenant’s obligation to maintain such books and records, and Landlords right to audit the same pursuant to Section 4.2 below, shall survive the expiration or earlier termination of this Lease.
4.2 AUDITS. Within three (3) years after receipt of an Annual Statement, upon at least fifteen (15) days’ prior “Notice” (as defined in Article 20) to Tenant, Landlord or its authorized representatives may audit Tenant’s records and books in order to verify Tenant’s Gross Sales and exclusions from Gross Sales (“Audit”). Tenant shall make all such books and records available for the Audit at the Premises or at Tenant’s offices in the State of California. If the Audit discloses an underpayment of Percentage Rent, Tenant shall immediately pay to Landlord the amount of the underpayment, with interest at the “Interest Rate” (as defined in Section 21.5) from the date the payment should have been made. If (a) Landlord is not able to perform the Audit in accordance with generally acceptable auditing standards because Tenant has not maintained its books and records as required under Section 4.1 or (b) the Audit discloses an underreporting of Gross Sales in excess of two percent (2%) of the reported Gross Sales, then Tenant shall also pay to Landlord the cost of the Audit and collection of any underpayment, including travel costs and reasonable attorneys’ fees. If the Audit discloses an overpayment of Percentage Rent, Tenant may offset the excess against its next payment(s) of Rent other than Base Rent.
-4- |
4.3 FINANCIAL STATEMENTS. Upon fifteen (15) days’ prior Notice, Tenant will provide to Landlord a certified financial statement reflecting Tenant’s current financial condition. If Tenant is a publicly-traded corporation, then delivery of Tenant’s last published financial information will satisfy this obligation. Tenant hereby expressly acknowledges and agrees that Landlord has relied on Tenant’s (and Guarantor’s, if applicable) financial documents delivered in connection with this Lease as evidence that Tenant will have the ability to perform all financial and operational obligations under this Lease as of the Lease Date. The foregoing requirements shall also apply to any Guarantor of Tenant under this Lease.
4.4 GUARANTOR. If a Guarantor is designated in Section 1.15, then Landlord’s obligations under this Lease shall be contingent upon Tenant’s delivery to Landlord of a guarantee of Lease in the form of Exhibit I hereto (“Guarantee”).
ARTICLE 5
TAXES
5.1 REAL PROPERTY TAXES.
(a) “Taxes” means and includes any form of tax or assessment (whether special or general, ordinary or extraordinary, foreseen or unforeseen), license fee, license tax, tax or excise on Rent or any interest of Landlord or Tenant (including any legal or equitable interest of Landlord or its beneficiary under a deed of trust, if any) in the Premises, the remainder of the Shopping Center or the underlying realty. “Taxes” shall not include Landlord’s general income taxes, inheritance, estate or gift taxes. Beginning on the Commencement Date, Tenant is obligated to pay Taxes attributable to the Premises pursuant to Section 5.1(b) below and Taxes attributable to the Common Area pursuant to Section 9.3 below.
(b) “Tenant’s Tax Contribution” shall be determined by multiplying all of the Taxes on the Larger Parcel for the applicable year (except for those Taxes billed pursuant to Section 9.3) by Tenant’s Share, plus a fee for administration and overhead equal to fifteen percent (15%) of the product so obtained. Landlord, at its option, may collect Tenant’s Tax Contribution after the actual amount of Taxes are ascertained or may collect in advance, monthly or quarterly, based upon estimated Taxes. If Landlord collects Tenant’s Tax Contribution based upon estimated amounts, then following the end of each calendar year or, at Landlord’s option, its fiscal year, Landlord shall give Tenant a statement covering the year just expired showing the total Tenant’s Tax Contribution payable by Tenant for that year and the payments made by Tenant with respect to that year. If there is a shortfall between what Tenant has already paid and the actual Tenant’s Tax Contribution due, then Tenant shall pay the deficiency within ten (10) days after its receipt of Landlord’s statement. If Tenant’s Tax Contribution for the year exceeds the actual Tenant’s Tax Contribution payable by Tenant, Tenant may offset the excess against the next payment(s) of Tenant’s Tax Contribution becoming due.
5.2 OTHER PROPERTY TAXES. Tenant shall pay, prior to delinquency, all taxes, assessments, license fees and public charges levied, assessed or imposed upon its business operation, trade fixtures, leasehold improvements, merchandise and other personal property on the Premises. If any such items are assessed with Landlord’s property, then the assessment shall be equitably allocated by Landlord on a reasonable basis. No taxes or assessments referred to in this Section 5.2 shall be considered Taxes.
5.3 CONTESTING TAXES. If Landlord contests any Taxes, Tenant will not be required to pay the cost of the contest; however, if Landlord is successful in such contest, Landlord will deduct from Tenant’s portion of any refund received an amount equal to Tenant’s Share of Taxes multiplied by the costs incurred by Landlord in prosecuting the contest.
ARTICLE 6
UTILITIES AND HVAC
6.1 TENANT’S PAYMENT OF UTILITY CHARGES. Tenant shall pay directly to the utility service provider all charges for utility services supplied to the Premises for which there is a separate meter and/or submeter, and shall comply with all energy usage reporting and disclosure requirements of Landlord relating to Tenant’s use of the Premises, consistent with applicable “Laws” (as defined in Section 7.3). If there is no meter or submeter, Tenant shall pay Landlord for its share of utility services supplied to the Premises upon billing by Landlord in an amount not more than the cost Tenant would be charged if billed directly by the local utility provider supplying such service. Landlord shall not be liable for any failure or interruption of any utility or service, unless such failure or interruption prevents Tenant from carrying on its business in the Premises for a period of seventy-two (72) consecutive hours and is directly attributable to (a) the negligence of Landlord, its agents or employees, or (b) Landlord’s wrongful failure to act reasonably and promptly to restore the interrupted utility service after Landlord receives Notice from Tenant. Tenant’s sole and exclusive remedy in such event shall be an equitable abatement of Base Rent from and after such seventy-two (72)-hour period until such failure or interruption is cured. No failure or interruption of any utility or service shall entitle Tenant to otherwise discontinue paying Rent, and in no event shall any such failure or interruption entitle Tenant to terminate this Lease. If Tenant fails to pay when due any charges referred to in this Article 6, Landlord may pay the charge and Tenant shall reimburse Landlord, within ten (10) days of billing therefor. Landlord shall have the option from time to time to supply any and all utilities to the Premises in accordance with the terms of a program applicable to the majority of tenants in the Shopping Center. Tenant shall comply with all of the requirements of such program.
6.2 TRASH DISPOSAL. Tenant shall deposit trash and rubbish only within receptacles in the Common Area approved by Landlord. Landlord shall cause trash receptacles to be emptied at Tenant’s cost and expense; provided, however, at Landlord’s option, Landlord may provide trash removal services, the cost of which shall be paid for by Tenant either (a) as a Common Area Expense, or (b) pursuant to an equitable proration of said costs by Landlord.
6.3 HEATING, VENTILATING AND AIR CONDITIONING. During the term, Tenant shall have use of the heating, ventilating and air conditioning unit or system (“HVAC”) serving the Premises upon Tenant’s acceptance of the Premises. Tenant shall maintain, repair, replace and operate such system in the Premises at its sole cost and expense. Tenant agrees to have the HVAC units serving the Premises serviced at least quarterly by a service contractor reasonably approved by Landlord. Within ten (10) days of receipt of Notice from Landlord, Tenant shall provide evidence of the service contract with said HVAC service contractor and that the HVAC system has been maintained in accordance with the terms of this Section 6.3. Upon the expiration or termination of the Term of the Lease, title to such additions and replacements shall remain in and shall vest solely in Landlord.
-5- |
ARTICLE 7
TENANT’S CONDUCT OF BUSINESS
7.1 PERMITTED TRADE NAME AND USE. Tenant shall use the Premises solely under the Trade Name and solely for the Permitted Use and for no other use or purpose. Nothing contained in this Lease shall be deemed to give Tenant an express or implied exclusive right to operate any particular type of business in the Shopping Center, whether of the same or similar type or nature, or otherwise. Tenant hereby acknowledges and agrees that Landlord has entered into this Lease with Tenant expressly based upon the specific Trade Name to be used by Tenant, and based upon the Permitted Use. Tenant agrees, as a material inducement and condition to Landlord’s agreement to enter into this Lease, and as a matter specifically bargained for by Landlord and Tenant, that it shall not make any material change to the decor, operations, menu or type of cuisine of the restaurant (“Concept”) operated from the Premises from that described in Section 1.10 of the Lease, or from a Concept subsequently approved by Landlord in writing to another Concept without the prior written consent of Landlord, which consent Landlord may, in its sole discretion, withhold for any reason, including Landlord’s subjective determination that such proposed Concept could (i) diminish the quality, acceptability and reputation of the restaurant operation or the Premises, or (ii) conflict or compete or be inconsistent with the operation, type of cuisine or Concept of any other restaurant within the Shopping Center. Tenant also acknowledges and agrees that Landlord has entered into this Lease based upon Landlord’s desire to maintain a very specific tenant mix, level of quality, level of customer interest, and level of customer service with respect to the target customers of the Shopping Center, together with Landlord’s determination that Tenant’s specific business and market niche fulfills such goals. Any deviation from the provisions set forth in this Section, Section 1.3 and Section 1.10 would constitute a material failure of consideration to Landlord. For purposes of this Lease, Tenant expressly acknowledges and agrees that the Shopping Center is a “shopping center” as described and intended in United States Bankruptcy Code 11 U.S.C.
§365(b)(3).
7.2 COVENANT TO OPEN AND OPERATE. Tenant covenants to open for business to the public in the entire Premises under the Trade Name on or before the Commencement Date fully fixturized, staffed and stocked with merchandise and inventory. Subject to temporary closures due to casualty, condemnation, force majeure or permitted remodeling, Tenant shall operate continuously for the Permitted Use under the Trade Name in the entire Premises during the times set forth in Exhibit G, Section 1, and at all times shall keep and maintain within the Premises an adequate stock of merchandise and trade fixtures to service and supply the usual and ordinary requirements of its customers.
7.3 COMPLIANCE WITH LAWS. Tenant shall comply with all laws, rules, regulatory standards, guidelines and regulations relating to the Premises (collectively, “Laws”) including, but not limited to, (i) all applicable Laws relating to any “hazardous material,” as currently defined in Section 25260 of the California Health and Safety Code, or as defined in any other applicable Laws, and any microbial elements or matter which pose a significant risk to human health (collectively, “Hazardous Materials”), including any Laws (a) applicable to products that may be sold by Tenant at the Premises, such as Proposition 65 or other warning, notification, and right-to-know requirements or (b) requiring notifications or reports to be provided to governmental agencies concerning spills or releases of Hazardous Materials, and (ii) Water Quality Laws, as such term is defined and as further set forth in Section 8.3 below.
7.4 RADIUS RESTRICTION. During the Term, Tenant shall not, nor shall any person, firm, corporation or other entity which has an interest in Tenant or which controls, is controlled by Tenant or is under common control with Tenant, own, operate or become financially interested in a business similar to the one to be operated by Tenant (“Other Business”) if the Other Business is opened after the Lease Date and its front door is located within the Radius Restriction Area specified in Section 1.11. If Tenant violates this covenant, then, as liquidated damages, the Gross Sales of the Other Business shall be included in the Gross Sales made from the Premises for the purpose of computing Percentage Rent. Landlord shall have the Audit rights specified in Section 4.2 with respect to the books, records and accounts of the Other Business. The foregoing covenant shall not apply with respect to any store opened by Tenant in any shopping center owned or operated by Landlord, its parent company, subsidiaries and related entities and affiliates.
7.5 HAZARDOUS MATERIALS. In the event Tenant intends to or does use, encounter, handle, store, release, spill or dispose of any Hazardous Material in connection with its business operations within the Premises, Tenant shall promptly notify Landlord in writing. Tenant shall promptly provide Landlord with true, correct, complete and legible copies of any reports, notices or correspondence relating to Hazardous Materials on the Premises which may be filed, prepared by or sent to Tenant. Landlord may, at any time or from time to time, require Tenant (i) to conduct monitoring, evaluation or any required remediation activities with respect to Hazardous Materials on the Premises, at Landlord’s discretion and at Tenant’s sole cost and expense, performed by an environmental consultant approved by Landlord, provided that Landlord has reasonable grounds to believe that a release of Hazardous Materials exists or is imminent, (ii) to complete and deliver to Landlord an Environmental Questionnaire, in Landlord’s then current form (and Tenant shall update and resubmit to Landlord the Environmental Questionnaire in the event of any material change to the information contained therein), and/or (iii) to cease and desist from using, handling, storing, releasing, or disposing any such Hazardous Materials within the Premises. Tenant’s indemnity set forth in Section 12.2 shall apply to any Costs arising out of Tenant’s use, storage, handling, release, remediation or disposal of Hazardous Materials on or about the Premises, including any Costs necessary to return the Premises, or any other property, to their condition existing before Tenant’s introduction of Hazardous Materials on the Premises. Tenant’s obligations under this Section 7.5 shall survive the expiration or earlier termination of this Lease. Notwithstanding anything to the contrary contained in this Lease, Tenant shall not be required to remediate or pay for the removal of any Hazardous Materials to the extent such Hazardous Materials exist in an amount in violation of applicable laws and are determined by reasonably sufficient evidence generated by a qualified, independent environmental consultant to have been present in such condition in the Premises prior to delivery of the Premises to Tenant.
7.6 RULES AND REGULATIONS. Tenant shall comply with the Rules and Regulations of the Shopping Center attached as Exhibit G, which shall be administered by Landlord in a non-discriminatory manner.
7.7 ASBESTOS REQUIREMENTS. Tenant must notify and obtain prior written consent from Landlord (which consent may be withheld in Landlord’s sole discretion) before using any asbestos-containing materials in connection with (i) any repairs to or maintenance of the Premises, (ii) any Alterations to the Premises or (iii) Tenant’s Work. If Landlord consents to Tenant’s use of any asbestos containing materials for such work, Landlord may require Tenant to have an asbestos survey conducted following the completion of such work and provide any resulting survey reports to Landlord.
-6- |
ARTICLE 8
MAINTENANCE AND REPAIRS
8.1 LANDLORD’S MAINTENANCE OBLIGATIONS. Landlord shall maintain in good condition and repair the structural components of the Building and all other buildings within the Shopping Center (excluding other buildings located on ground lease parcels within the Shopping Center that are maintained by the tenant(s) thereunder), including without limitation, foundations, roofs, the exterior surfaces of the exterior walls of all such buildings within the Shopping Center (but specifically excluding signage, doors, door frames, door checks, windows, window frames, mullion systems and, at Landlord’s election, storefronts and storefront awnings). The obligations described in the preceding sentence are referred to as “Landlord’s Maintenance Obligations.” Except to the extent specifically excluded in Section 9.3 below, the cost of Landlord’s Maintenance Obligations will be included as Common Area Expenses, provided, however, Landlord’s Maintenance Obligations shall not include and Tenant shall be solely responsible for the costs of any repairs or replacements resulting from (i) Tenant’s negligence or willful acts, or those of anyone claiming under Tenant, or (ii) Tenant’s failure to observe or perform any condition or agreement contained in this Lease, or (iii) any alterations, additions or improvements made by Tenant or anyone claiming under Tenant. Notwithstanding anything to the contrary contained in this Lease, Landlord will not be liable for failing to make any repairs required to be made by Landlord under this Lease unless Tenant has first delivered to Landlord Notice of the need for such repairs and Landlord has failed to commence and complete the repairs within a reasonable period of time following receipt of Tenant’s Notice. Tenant waives the provisions of Sections 1932(1),1941 and 1942 of the Civil Code of the State of California, or of any similar, related or superseding provisions of Law which permit Tenant to make repairs at Landlord’s expense or to terminate this Lease.
8.2 TENANT’S MAINTENANCE OBLIGATIONS. Except for obligations that are specifically designated as part of Landlord’s Maintenance Obligations, Tenant, at its expense, shall keep the entire Premises and all utility and mechanical facilities and systems exclusively serving the Premises (collectively, “Tenant Utility Facilities”) in first-class order, condition and repair and shall make replacements necessary to keep the Premises and Tenant Utility Facilities in such condition. All trade fixtures, signs and other personal property installed in or attached to the Premises by Tenant must be new when installed or attached, and all replacements of such items shall be of a quality equal to or exceeding that of the original. Tenant’s repair and maintenance obligations with respect to the Premises, shall include any signage, doors, door frames, door checks, windows, window frames, mullion systems, storefronts and storefront awnings (unless Landlord elects to maintain the storefronts and storefront awnings as provided in Section 8.1 above). Storefronts include the facia and exterior insulation finishing systems (EIFS), and the repair and maintenance of storefronts include glazing, patching, painting and stucco work. If Landlord determines, in its sole discretion, that Tenant’s failure to perform any of its repair or maintenance obligations under this Section 8.2 adversely affects the exterior appearance of the Premises (such as, without limitation, the failure to clean windows or awnings or painting/refinishing the storefront), and if such failure is not remedied within the time frame specified in a Notice thereof from Landlord to Tenant, then Landlord shall have the right, but not the obligation, to perform such repair or maintenance work on behalf of and for the account of Tenant.
Tenant shall use the Cleaning Facility (as defined in Exhibit C) for the steam cleaning of grease containers and for the similar cleaning of any other restaurant equipment, utensils or other items used in the operation of Tenant’s business in the Premises, and Tenant shall use the Grease Storage Facility (as defined in Exhibit C) for storing all cooking oil waste and other grease generated from the operation of Tenant’s business. Tenant agrees to confine all such activities to the Cleaning Facility and the Grease Storage Facility, as applicable. Without limiting the foregoing, in no event shall any exterior portion of the Premises, areas adjacent to the Premises or any portion of the Common Area be used for (a) storing or disposing of cooking oil or grease generated from the operation of Tenant’s business or (b) cleaning any restaurant equipment, utensils or other items used in the operation of Tenant’s business. Tenant shall contract directly with a service company to service the Grease Storage Facility and for the removal of all cooking oil waste and other grease generated from the operation of Tenant’s business. All grease storage and removal and other cleaning activities of Tenant shall be conducted in accordance best industry standards, techniques and technology to provide for containment and disposal of liquids in compliance with all Water Quality Laws and as otherwise required under this Lease.
8.3 WATER QUALITY, AIR QUALITY AND DRAINAGE. Without limiting any other provisions contained in this Lease, Tenant’s maintenance obligations shall be subject to and include the following requirements:
(a) Tenant acknowledges that the Shopping Center is subject to various federal, state and local Laws regarding drainage and water quality (“Water Quality Laws”) or air quality (“Air Quality Laws”), many of which are implemented by governmental agencies, including, without limitation, of the U.S. Environmental Protection Agency, the California State Water Resources Control Board, the Regional Water Quality Control Board, the California Coastal Commission, the County of Orange, South Coast Air Quality Management District and all Laws of any governmental authority having jurisdiction over odors or emissions from the Shopping Center or air quality and the city in which the Premises are located, which Water Quality Laws and Air Quality Laws may change from time to time. At its sole cost and expense, Tenant shall comply with the Water Quality Laws and Air Quality Laws, and obtain any and all permits or other authorizations which may be required by them, in connection with Tenant’s use or operation of the Premises, Tenant’s Work or any “Alteration” (defined in Section 21.8). Tenant shall cooperate in good faith with the appropriate governmental authorities and Landlord to ensure Tenant’s compliance with the requirements of this Section 8.3.
(b) All wash water runoff must be collected, reclaimed, and disposed of in the approved wash water disposal location for the Shopping Center (if any), or removed from the Shopping Center and disposed of off site subject to all appropriate governmental rules and regulations (including any Water Quality Laws). Any water or liquid used to clean the Premises must be prevented from entering any storm drains. Further, Tenant shall not discharge water or other liquids from the Premises into the Common Area or permit the flow of residue to any area outside of the enclosed portion of the Premises. The only water permitted in the storm drain is rainwater.
-7- |
8.4 LANDLORD’S RIGHT OF ENTRY. Landlord or its authorized representatives may enter the Premises following not less than twenty-four (24) hours prior Notice to Tenant (except in a case of emergency, in which event no Notice shall be required) to: (a) inspect or re-measure the Premises; (b) perform any obligation or exercise any right or remedy of Landlord under this Lease; (c) make repairs, alterations, improvements or additions to the Premises or to other portions of the Shopping Center; (d) perform work necessary to comply with Laws of any public authority or the rules or regulations of any insurance underwriter; (e) show the Premises to prospective tenants, lenders or purchasers, and (f) perform work that Landlord deems necessary to prevent waste or deterioration of the Premises should Tenant fail to promptly commence and complete such repairs within three (3) days after Landlord delivers Notice.
ARTICLE 9
COMMON AREA
9.1 MAINTENANCE, USE AND CONTROL OF COMMON AREA. “Common Area” means all areas within the exterior boundaries of the Shopping Center and adjacent streets, now or later made available for the non-exclusive use of Tenant and other persons entitled to occupy Floor Area in the Shopping Center. Landlord shall maintain the Shopping Center in a first-class condition similar to other shopping centers in Orange County, California; however, the manner in which the Shopping Center is managed shall be within Landlord’s sole discretion. Tenant shall have a non-exclusive right to use the Common Area provided that (i) such permission is subject to the reservations set forth in Section 2.2, and (ii) Landlord shall have the sole and exclusive control of the Common Area, and the right to make additions and changes to the Common Area and the Shopping Center and the improvements located therein, which rights shall include, without limitation, the right to (a) utilize from time to time any portion of the Common Area for promotional, entertainment and related matters, (b) place permanent or temporary kiosks, displays, carts and stands in the Common Area and to lease same to tenants, (c) temporarily close any portion of the Common Area for repairs, improvements or alterations, or for any other reasons deemed sufficient in Landlord’s reasonable judgment, and (d) reasonably change the shape and size of the Common Area, add, eliminate or change the location of improvements to the Common Area, including without limitation, buildings, lighting, parking areas, roadways and curb cuts, and construct buildings on the Common Area. Any such changes will not materially or adversely affect Tenant’s access to or visibility from the Common Area located immediately adjacent to the Premises, except during any period of construction. Tenant shall have no right to pursue any injunctive relief or recover damages or otherwise with respect to disruption of business for any construction of changes.
9.2 PARKING. Tenant and its employees shall park their vehicles only in the parking areas designated for that purpose by Landlord. If Landlord implements any program related to parking, parking facilities or transportation facilities including any program of parking validation, employee parking, employee shuttle transportation during peak traffic periods or other program to limit, control, enhance, regulate or assist parking by customers of the Shopping Center, Tenant agrees to participate in the program, comply with any reasonable and nondiscriminatory rules and regulations established by Landlord and pay its proportionate share of the costs of the program as reasonably determined by Landlord.
9.3 COMMON AREA EXPENSES. The term “Common Area Expenses” means all costs and expenses incurred by Landlord: (a) in operating, managing, policing, repairing and maintaining the Common Area and the Common Facilities, and in maintaining, repairing and replacing all sidewalks, landscaping, parking areas and other improvements located in the Common Area for the non-exclusive use of the tenants of the Shopping Center; (b) in performing Landlord’s Maintenance Obligations, which shall include maintaining, repairing and replacing the exterior surface of exterior walls (and storefronts and storefront awnings if Landlord has elected to include the cleaning and maintenance of same as part of Common Area Landlord’s Maintenance Obligations) and maintaining, repairing and replacing roofs of the buildings located in the Shopping Center; (c) in operating, repairing, replacing and maintaining all utility facilities and systems not exclusively serving the premises of any tenant or store (“Common Utility Facilities”), Common Area furniture and equipment (including, without limitation, furniture for any so-called “people places” or other amenities within the Shopping Center), seasonal and holiday decorations, Common Area lighting fixtures, Shopping Center sign monuments and directional signage; (d) for Taxes on the improvements and land comprising the Common Area (“Common Area Taxes”); (e) all office and personnel costs (including without limitation all salaries, wages, employee benefits and other compensation) incurred by Landlord for on-site and off-site personnel (whether employees of Landlord or third-party contractors) to the extent such personnel are involved in the operation and management of the Shopping Center, based upon a reasonable allocation of such costs between the Shopping Center and all other properties which are the responsibility of such employees or contractors; (g) for expenditures which are required under any governmental Law or regulation that was not specifically applicable to the Shopping Center at the time it was originally constructed; (g) Tenant’s share of the cost of Landlord’s Insurance (as defined in Exhibit F); and (h) a fee for calculating, billing, and administering Common Area Expenses equal to fifteen percent (15%) of the Common Area Expenses enumerated in (a) through (g) above for the applicable year. The cost of any Common Area Expense described in the preceding sentence that is properly classified under generally accepted accounting principles as a capital improvement shall be amortized over the useful life of the item in question (as reasonably determined by Landlord) on a straight-line basis, together with interest at the Interest Rate. Excluded from Common Area Expenses are: (i) interest, amortization, or other payments on secured loans to Landlord encumbering the Shopping Center; (ii) ground rent in connection with its lease of the land on which the Shopping Center is situated; (iii) income, excess profits or franchise taxes or other such taxes imposed on or measured by the income of Landlord from the operation of the Shopping Center; (iv) cost of work directly related to the sole advantage of any particular tenant of the Shopping Center other than Tenant; (v) costs incurred in connection with the original construction of the Shopping Center; (vi) costs incurred in connection with development or leasing of the Shopping Center; (vii) costs incurred by Landlord for the repair of damage or destruction caused by insured casualties to the extent of insurance proceeds actually received by Landlord or that would have been received by Landlord had it maintained the insurance it was required to maintain pursuant to the Lease; and (viii) costs incurred by Landlord to enforce the terms of any lease.
9.4 PRORATION OF COMMON AREA EXPENSES. Portions of the Shopping Center are, or may be, owned or leased from time to time by persons or entities occupying (a) freestanding facilities or (b) other facilities containing a substantial amount of Floor Area and contributing to the Common Area Expenses on a basis other than that described herein (collectively, “Other Stores”). “Tenant’s Common Area Contribution” shall be determined by subtracting the contributions, if any, paid by the Other Stores from the total Common Area Expenses and multiplying the result by Tenant’s Share of Common Area Expenses. Tenant’s Common Area Contribution shall be payable in the following manner:
(a) Tenant shall pay to Landlord, on the first day of each calendar month, an amount estimated by Landlord to be the monthly amount of Tenant’s Common Area Contribution. The estimated monthly Tenant’s Common Area Contribution may be adjusted periodically by Landlord on the basis of Landlord’s reasonably anticipated costs. Following the end of each calendar year or, at Landlord’s option, its fiscal year, Landlord shall give Tenant a statement covering the preceding calendar or fiscal year (as the case may be), showing the actual Tenant’s Common Area Contribution for that year and the monthly payments made by Tenant during that year for Tenant’s Common Area Contribution (the “Annual CAM Statement”). If the total of such monthly payments of Tenant’s Common Area Contribution for such year are less than the actual Tenant’s Common Area Contribution payable by Tenant, Tenant shall pay to Landlord the deficiency within ten (10) days after Landlord’s delivery of the Annual CAM Statement. If the total of such monthly payments of Tenant’s Common Area Contribution for the year exceed the actual Tenant’s Common Area Contribution payable, Tenant may offset the excess against payments of Tenant’s Common Area Contribution next due. An appropriate proration of Tenant’s Common Area Contribution as of the Commencement Date and the Expiration Date of the Lease shall be made.
-8- |
(b) If Tenant reasonably questions any billing of Common Area Expenses, Tenant shall have the right, within thirty (30) days after Tenant’s receipt of the Annual CAM Statement, to request in writing copies of backup documentation reasonably sufficient to support the disputed item(s) set forth in such bill, which Landlord shall provide within a reasonable time after Landlord receives Tenant’s written request. Should Tenant fail to object in writing to Landlord’s determination of the actual amount of Tenant’s Common Area Contributions within one (1) year following delivery of the applicable Annual CAM Statement, Landlord’s determination of the actual amount of Tenant’s Common Area Contribution for the applicable year shall be conclusive and binding on Tenant. Tenant acknowledges that, with respect to insurance, such costs are currently based upon a master policy covering other assets of Landlord and that, accordingly, the backup documentation shall consist solely of either a letter from (a) a third-party actuary stating that the amount of the allocation to the Shopping Center is reasonable, or (b) a licensed broker or underwriter showing that the allocated amount is a market rate. Any Landlord approved adjustment shall be set forth in an adjusted bill reflecting a credit for such adjustment. Tenant’s right to request backup documentation shall not entitle Tenant to withhold, delay or offset against any payment of Common Area Expenses or any other charge owing under the Lease.
(c) Notwithstanding anything contained in this Section 9.4 to the contrary, the Floor Area of tenants in the Shopping Center that maintain, repair and replace a portion of their premises or insure their own premises shall not be included in the proration of the portion of the Common Area Expenses relative to the portion of their premises that they maintain, repair, replace or insure, and the Floor Area of such premises shall be excluded from the calculations made pursuant to Section 9.4(a) with respect to such items of maintenance, repair, replacement or insurance. Landlord shall periodically determine Floor Area for all purposes under this Lease and Landlord’s determination shall be conclusive.
ARTICLE 10
ASSIGNMENT AND SUBLETTING
10.1 NO ASSIGNMENT OR SUBLETTING. Tenant shall not, whether in one (1) transaction or a series of transactions, assign, sublet, encumber, mortgage, hypothecate or pledge this Lease or its interest in the Premises nor allow the Premises to be occupied, in whole or in part, by any other person or entity, nor enter into franchise, license or concession agreements, nor change ownership or voting control, nor otherwise transfer (including any transfer by operation of Law) all or any part of this Lease or of Tenant’s interest in the Premises or Tenant’s business (collectively, “Assign” or an “Assignment”) without Landlord’s prior written consent, not to be unreasonably withheld, delayed or conditioned. If Tenant, or an entity owning a controlling interest in Tenant, is a corporation which is not a public corporation, or is an unincorporated association, limited liability company or partnership, (i) the encumbrance, mortgage, hypothecation or other pledge, whether in one (1) transaction or a series of transactions, of any stock or interest in Tenant or an entity owning a controlling interest in Tenant, or (ii) the entering into of any management agreement or any agreement in the nature thereof transferring control or any substantial percentage of the profits and losses from the business operations of Tenant in the Premises to a person or entity other than Tenant, or otherwise having substantially the same effect, shall be deemed an Assignment within the meaning of this Article. Tenant hereby represents and warrants to Landlord that as of the Lease Date it has not entered into any encumbrance, mortgage, hypothecation or other pledge which would result in an encumbrance or pledge of this Lease or Tenant’s interest in the Premises. For purposes of this Article 10, the term “control” (including the terms “controlled by” and “under common control with”) means the possession, directly or indirectly, of the power to direct or cause the direction of the management and policies of any Person, whether through the ownership of voting securities or by contract or otherwise, and/or ownership of more than fifty percent (50%) of the outstanding voting capital stock of a corporation or more than fifty percent (50%) of the beneficial interests of any other entity. “Person” means an individual, partnership (whether general or limited), limited liability company, corporation, trust, estate, unincorporated association, nominee, joint venture or other entity.
10.2 PROCEDURES. Should Tenant desire to enter into an Assignment, Tenant shall request, in writing, Landlord’s consent to the proposed Assignment at least sixty (60) days before the intended effective date of the proposed Assignment, which request shall include the following: (a) the effective date, terms and conditions of the proposed Assignment, (b) detailed financial information regarding the proposed transferee, including a detailed statement of its tangible net worth, (c) a description of the previous business experience of the proposed transferee, (d) a complete business plan prepared by the proposed transferee, and (e) any further information relevant to the proposed Assignment which Landlord shall reasonably request. Within thirty (30) days after the later of (i) Landlord’s receipt of Tenant’s request for consent to the proposed Assignment, and (ii) Landlord’s receipt of all of the information set forth in (a) through (e) above, Landlord may elect either to: (aa) consent to the proposed Assignment; (bb) deny such consent; or (cc) in Landlord’s sole discretion, terminate this Lease, such termination to be effective thirty (30) days following Landlord’s election. Tenant shall have the right to void Landlord’s termination by withdrawing its request for consent prior to the expiration of such thirty (30)-day period.
10.3 STANDARD FOR CONSENT. Tenant agrees that Landlord may refuse its consent to the proposed transfer on any reasonable grounds, and (by way of example and without limitation) Tenant agrees that it shall be reasonable for Landlord to withhold its consent if any of the following situations exist or may exist: (a) the use to which the Premises will be put by the proposed transferee is different than the use set forth in Section 1.10; (b) the proposed transferee’s financial condition is inadequate to support the financial and other obligations of Tenant under this Lease; (c) the business reputation or character of the proposed transferee is not reasonably acceptable to Landlord; (d) the proposed transferee is not likely to conduct on the Premises a business of a quality substantially equal to that conducted by Tenant; (e) the nature of the proposed transferee’s proposed or likely use of the Premises would impose an increased burden on the Common Area, or increase the risk of the release of Hazardous Materials; (f) Landlord has not received assurances acceptable to Landlord in its sole discretion that all past due amounts owing from Tenant to Landlord, if any, will be paid and all other Defaults on the part of Tenant, if any, will be cured prior to the effective date of the proposed Assignment; (g) in Landlord’s reasonable business judgment the amount of annual Gross Sales Landlord anticipates will be generated by the proposed transferee is less than the average annual Gross Sales Tenant has generated during the two (2) years immediately prior to the proposed Assignment; and (h) in Landlord’s reasonable business judgment the Assignment would breach any covenant of Landlord respecting radius, location, use or exclusivity relating to the Shopping Center, or, in Landlord’s sole discretion, conflict with, be incompatible with or have an adverse impact on the tenant mix of the Shopping Center. Each of the rights of Landlord set forth in this Article 10 is a reasonable restriction for purposes of California Civil Code Section 1951.4.
-9- |
10.4 NO RELEASE. No Assignment shall relieve Tenant or any Guarantor from its covenants and obligations under this Lease. Any purported Assignment requiring Landlord’s consent shall be void and confer no rights whatsoever on any third party if Landlord’s consent is not obtained. Consent by Landlord to any Assignment shall not constitute a waiver of the requirement for such consent to any subsequent Assignment. Landlord may collect and accept any one or more payments of Rent from any person or party in possession or control of the Premises (or claiming the same) without the same constituting a consent to any transfer of possession or control of the Premises or an Assignment and Landlord may otherwise enforce any of the duties, obligations or covenants of the “Tenant” hereunder, all without any release of Tenant whatsoever and without any waiver or limitation of Landlord’s rights and remedies under this Lease or at Law or in equity.
10.5 RENTAL INCREASE. If an Assignment occurs, the Base Rent shall be increased, effective as of the date of the Assignment, to the greater of (a) an amount equal to the total of the applicable Base Rent due (for each remaining lease period set forth in Section 1.8) plus Percentage Rent required to be paid by Tenant during the twelve (12)-month period immediately preceding the request for Landlord’s consent to the Assignment, (b) Base Rent specified in Section 1.8, adjusted in accordance with the provisions of Section 21.7 of this Lease relating to percentage adjustments in the “Index” (as defined in Section 21.7), or (c) a sum equal to the then fair market rental value of the Premises, agreed upon by Landlord and Tenant. If Landlord and Tenant are unable to agree upon the then fair market rental value of the Premises, then the fair market rental value may be determined by a qualified independent appraiser chosen by Landlord and reasonably approved by Tenant. Thereafter, Base Rent shall be increased proportionately in accordance with the periodic adjustments to Base Rent as set forth in Section 1.8.
ARTICLE 11
PROMOTIONAL SERVICES
11.1 PROMOTIONAL SERVICE. Tenant shall participate in a service organized to promote the Shopping Center (“Promotional Service”). As its contribution for the operation and management of the Promotional Service, Tenant shall pay to Landlord (i) the Initial Promotional Assessment specified in Section 1.12(a), and (ii) the Promotional Charge calculated in the manner set forth in Section 1.12(b) (which Promotional Charge shall be increased by five percent (5%) on each July 1, commencing the first time such date is more than one hundred eighty (180) days after the Commencement Date). Tenant shall pay the Initial Promotional Assessment and the first monthly installment of the Promotional Charge concurrently with Tenant’s execution of this Lease. Tenant shall pay all subsequent installments of the Promotional Charge monthly in advance on or before the first day of each month. As partial compensation for implementing and managing the Promotional Service, Landlord shall be entitled to retain twenty-five percent (25%) of the Promotional Service charges payable pursuant to this Section 11.1.
11.2 TENANT REQUIRED ADVERTISING. From and after the Commencement Date, Tenant or Tenant’s corporate office shall spend during each calendar year an amount equal to at least two percent (2%) of Tenant’s Gross Sales from the Premises for advertising Tenant’s business at the Shopping Center (“Required Advertising”). The Required Advertising shall be in television, radio, newspapers, tabloids, direct mailings or other media covering the trade area served by the Shopping Center, and shall designate the location of the Premises by reference to the Shopping Center by name. The Required Advertising may include electronic media (such as Tenant boosting a comment/ad on Facebook, banner ad buys on any websites, or paying for an email blast by buying the list of names), but the costs of creating and maintaining a web/internet/social media presence, such as Tenant’s website, Facebook page or Twitter account shall not satisfy the Required Advertising. At any time upon request by Landlord, Tenant shall furnish Landlord with its Annual Statement of Gross Sales and a certified statement showing the amounts Tenant actually spent for advertising. If Tenant fails to spend the Required Advertising amount, Tenant shall pay to Landlord, as liquidated damages, the difference between (a) the amount actually spent by Tenant for advertising during the preceding calendar year, and (b) the Required Advertising amount that Tenant was required to spend for advertising during the applicable calendar year pursuant to this Section 11.2.
ARTICLE 12
INSURANCE AND INDEMNITY
12.1 INSURANCE. The insurance obligations of Landlord and Tenant are set forth in Section 1.13 and Exhibit F.
12.2 INDEMNITY. Tenant shall pay for, defend (with an attorney approved by Landlord), indemnify, and hold Landlord harmless from any real or alleged damage or injury and from all claims, judgments, liabilities, penalties, costs and expenses, including attorneys’ fees and costs (collectively, “Costs”), in any way connected to Tenant’s use of the Premises, Tenant’s activities within the Shopping Center, or any repairs, alterations or improvements (including Tenant’s Work) which Tenant may make or cause to be made on the Premises, or by any breach of this Lease by Tenant and any loss or interruption of business or loss of Rent income resulting from any of the foregoing; provided, however, Tenant shall not be liable for Costs to the extent such damage or injury is ultimately determined to be caused by the negligence or misconduct of Landlord. Notwithstanding the foregoing, Tenant shall in all cases accept any tender of defense of any action or proceeding in which Landlord is named or made a party and shall, notwithstanding any allegations of negligence or misconduct on the part of Landlord, defend Landlord as provided herein until a final determination of negligence or misconduct is made. Costs shall also include all of Landlord’s attorneys’ fees, litigation costs, investigation costs and court costs and all other costs, expenses and liabilities incurred by Landlord or its counsel from the date Landlord first receives Notice that any claim or demand is to be made or may be made. For purposes of this Section 12.2, (a) “Landlord” includes Landlord and Landlord’s directors, officers, shareholders, members, agents and employees, and (b) “Tenant” includes Tenant and its directors, officers, shareholders, members, agents, contractors and employees. Tenant’s obligations under this Section 12.2 shall survive the termination of this Lease.
12.3 WAIVER. Landlord shall not be liable to Tenant, Tenant’s employees, agents or invitees for: (a) any damage to property of Tenant, or of others, located in, on or about the Premises, (b) the loss of or damage to any property of Tenant or of others by theft or otherwise, (c) any injury or damage to persons or property resulting from fire, explosion, falling plaster, steam, gas, electricity, water, rain or leaks from any part of the Premises or from the pipes, appliance of plumbing works or from the roof, street or subsurface or from any other places or by dampness or by any other cause of whatsoever nature, or (d) any such damage caused by other tenants or persons in the Premises, occupants of adjacent property of the Shopping Center, or the public, or caused by operations in construction of any private, public or quasi-public work. The foregoing shall not be construed to relieve Landlord of liability for Landlord’s willful misconduct. Landlord shall in no event be liable for any consequential damages or loss of business or profits and Tenant hereby waives any and all claims for any such damages. All property of Tenant kept or stored on the Premises shall be so kept or stored at the sole risk of Tenant and Tenant shall hold Landlord harmless from any claims arising out of damage to the same, including subrogation claims by Tenant’s insurance carriers, unless such damage shall be caused by the willful misconduct of Landlord. Landlord or its agents shall not be liable for interference with the light or other intangible rights.
-10- |
ARTICLE 13
DAMAGE
13.1 INSURED CASUALTY. The following provisions shall apply in the case of damage by fire or other perils required to be covered by Landlord’s Insurance specified in Exhibit F:
(a) Within sixty (60) days after all required permits have been obtained, Landlord shall begin the repair, reconstruction and restoration of the Premises as Landlord, in its reasonable business judgment, deems necessary, and shall proceed with reasonable diligence to complete such work; provided, however, that Tenant, at its cost, shall repair and restore all items of Tenant’s Work and all intervening alterations and improvements and replace its stock in trade, trade fixtures, furniture, furnishings and equipment. Upon delivery of the possession of the Premises, Tenant shall promptly begin this work and shall proceed with all reasonable diligence to completion.
(b) Notwithstanding the foregoing, if the Premises is totally destroyed, or if the Shopping Center is destroyed to an extent of at least fifty percent (50%) of its full replacement cost as of the date of destruction, then (i) if the destruction occurs during the last two (2) years of the Term, Landlord and Tenant shall each have the right to terminate this Lease, and
(ii) if the destruction occurs prior to the last two (2) years of the Term, Landlord shall have the exclusive right to terminate this Lease. In each case, the termination right shall be exercised by the terminating party giving Notice to the other party within thirty (30) days after the date of destruction.
13.2 UNINSURED CASUALTY. If the Premises or the Shopping Center are damaged as a result of any casualty not required to be covered by the insurance specified in Part 6 of Exhibit F, Landlord, within ninety (90) days following the date of such damage, shall begin the repair, reconstruction or restoration of the Premises as provided in this Lease and shall proceed with reasonable diligence to complete such work, provided, however, if the damage to the Premises, or to the buildings in the Shopping Center excluding the Premises, and excluding any freestanding buildings, is greater than ten percent (10%) of the total replacement cost, Landlord may elect within said ninety (90) days not to so repair, reconstruct or restore the damaged property, in which event, at Landlord’s option, this Lease shall terminate upon the expiration of such ninety (90)-day period. If Landlord elects to restore the Premises, then Tenant shall have the same repair, restoration and replacement obligations it has pursuant to Section 13.1(a).
13.3 INSURANCE PROCEEDS. If this Lease terminates pursuant to this Article 13, Tenant shall pay to Landlord all proceeds from the Fire and Extended Coverage insurance carried pursuant to Part 1.E of Exhibit F, but excluding proceeds for Tenant’s property not permanently affixed to Landlord’s property such as trade fixtures, merchandise, signs and other personal property.
13.4 ABATEMENT. To the extent that Tenant has maintained the business interruption or loss of income insurance required by Exhibit F and the proceeds of such insurance may be exhausted during the period of any repair, reconstruction and restoration required by this Article 13, Base Rent shall be abated proportionately with the degree to which Tenant’s use of the Premises is impaired during the remainder of the period of repair, reconstruction and restoration; provided, however, the amount of Base Rent abated pursuant to this Section 13.4 shall not exceed the amount of loss of rental income insurance proceeds actually received by Landlord. Tenant shall continue the operation of its business on the Premises during any such period to the extent reasonably possible from the standpoint of prudent business management, and the obligation of Tenant to pay Percentage Rent (to the extent Tenant is operating its business from the Premises) and other charges shall remain in full force and effect. Tenant shall not be entitled to any compensation or damages from Landlord for loss of use of any part of the Premises or the Building, Tenant’s personal property or any inconvenience or annoyance occasioned by such damage, repair, reconstruction or restoration. Tenant hereby waives any statutory rights of termination which may arise by reason of any partial or total destruction of the Premises or improvements thereon.
ARTICLE 14
EMINENT DOMAIN
14.1 TAKING. “Taking,” as used in this Article 14, means an appropriation or taking under the power of eminent domain by any governmental authority or a voluntary sale or conveyance in lieu of condemnation but under threat of condemnation. This Lease sets forth the terms and conditions upon which this Lease may terminate in the event of a Taking. Accordingly, Landlord and Tenant waive the provisions of the California Code of Civil Procedure Section 1265.130 and any successor or similar statutes permitting Landlord or Tenant to terminate this Lease as a result of a taking.
14.2 TOTAL TAKING. In the event of a Taking of the entire Premises, this Lease shall terminate and expire as of the date possession is delivered to the condemning authority and Landlord and Tenant shall each be released from any liability under this Lease after the date of such termination, but Rent for the last month of Tenant’s occupancy shall be prorated and Landlord shall refund to Tenant any Rent paid in advance.
14.3 PARTIAL TAKING. If there is a Taking of (a) more than twenty-five percent (25%) of the Floor Area of the Premises or, (b) a portion of the Premises and, regardless of the amount taken, the remainder of the Premises is not one (1) undivided parcel of property, then either Landlord or Tenant may terminate this Lease as of the date Tenant is required to vacate a portion of the Premises. The terminating party shall give Notice of the termination to the other party within thirty (30) days after Tenant receives Notice from Landlord of the Taking.
-11- |
14.4 AWARD. The entire award in any such condemnation proceeding, whether for a total or partial Taking, or for diminution in the value of the leasehold or for the fee, shall belong to Landlord. Without diminishing the rights of Landlord under the preceding sentence, Tenant is entitled to recover from the condemning authority such compensation as may be separately awarded by the condemning authority to Tenant in its own right for the taking of trade fixtures and equipment owned by Tenant and for the expense of removing and relocating its trade fixtures and equipment, but only in the event that the compensation awarded to Tenant is in addition to and does not diminish the compensation awarded to Landlord as provided above.
14.5 CONTINUATION OF LEASE. If Landlord and Tenant elect not to terminate this Lease after a Taking (or have no right to so terminate) then as soon as reasonably possible Landlord shall, to the extent of available condemnation proceeds, restore the Premises on the remaining land to a complete unit of like quality and character as existed prior to the Taking and, thereafter, Base Rent shall be reduced on an equitable basis, taking into account the relative value of the portion of the Premises taken as compared to the portion remaining, and Landlord shall be entitled to receive the total award or compensation.
ARTICLE 15
DEFAULTS BY TENANT
15.1 EVENTS OF DEFAULT. Any of the following constitutes a material breach of this Lease by Tenant (“Default”): (i) Tenant fails to pay any monetary obligation for a period of five (5) days after Notice from Landlord; or (ii) Tenant fails to perform any other obligation of the Lease for more than a reasonable time (not exceeding ten (10) days) after Landlord delivers Notice to Tenant (unless the Default complained of, other than a Default for the payment of money, cannot be cured within such ten (10)-day period, then Tenant shall not be considered to be in Default of the Lease so long as it commences to cure the Default within such ten (10)-day period and thereafter diligently and continuously prosecutes the cure to completion); or (iii) Tenant vacates or abandons the Premises; or (iv) Tenant makes a general assignment for the benefit of creditors; or (v) the attachment or judicial seizure of substantially all of Tenant’s assets located at the Premises or Tenant’s interest in this Lease (where the seizure is not discharged within thirty (30) days); or (vi) Tenant or any Guarantor fails to pay its debts as they become due or admits in writing its inability to pay its debts, or makes a general assignment for the benefit of creditors; or (vii) any financial statements given to Landlord by Tenant, any assignee of Tenant, subtenant of Tenant, any Guarantor, or successor in interest of Tenant are intentionally false; or (viii) Tenant or any Guarantor of this Lease declares bankruptcy or is otherwise declared insolvent and in the case of the Guarantor, Tenant fails to provide to Landlord a Guarantee from a substitute guarantor which is acceptable to Landlord in its sole business judgment, taking into account Tenant’s financial obligations under the Lease. In addition to all other rights or remedies of Landlord set forth in this Lease, if a Default occurs, Landlord shall have all rights available to Landlord as may be permitted from time to time by the Laws of the State of California, without further Notice or demand to Tenant. In addition, Landlord has the remedy described in California Civil Code Section 1951.4 (Landlord may continue this Lease in effect after Tenant’s breach and abandonment and recover Rent as it becomes due, if Tenant has the right to sublet or assign, subject only to reasonable limitations). In any case in which Landlord re-enters and occupies the Premises, by unlawful detainer proceedings or otherwise, Landlord, at its option, may repair, alter, subdivide or change the character of the Premises as Landlord deems best, relet all or any part of the Premises and receive the rents therefor, and none of these actions shall constitute a termination of this Lease, a release of Tenant from any liability, or result in the release of any Guarantor. Landlord shall not be deemed to have terminated this Lease or the liability of Tenant to pay any Rent or other charges later becoming due by any re-entry of the Premises pursuant to this Section 15.1, or by any action in unlawful detainer or otherwise to obtain possession of the Premises, unless Landlord has first given Tenant Notice that it is terminating this Lease. Any Notice given by Landlord pursuant to this Section 15.1 shall be in lieu of, and not in addition to, any Notice required by Section 1161 of the California Code of Civil Procedure or superseding statute. Any payment of Rent into Landlord’s lockbox following Landlord’s delivery of Notice to Tenant pursuant to this Section 15.1 shall not constitute acceptance of Rent.
15.2 TERMINATION OF LEASE. If Landlord elects to terminate this Lease pursuant to the provisions of Section 15.1, damages shall include, without limitation, the remedy and measure of damages specified pursuant to California Civil Code Section 1951.2, which shall include the worth at the time of award of the amount by which the unpaid Rent for the balance of the Term after the time of award exceeds the amount of Rent loss Tenant proves could have been reasonably avoided.
15.3 PERFORMANCE FEE. Notwithstanding any other term or provision of this Lease, if after the delivery of Notice to Tenant and the expiration of any applicable cure period, Landlord performs work in lieu of or on behalf of Tenant or if Landlord pays any charges on behalf of Tenant, then in addition to the costs incurred by Landlord to perform such work or pay such charges, Tenant shall pay to Landlord a fee equal to fifteen percent (15%) of the amount so incurred by Landlord as reimbursement of Landlord’s estimated costs of Landlord’s actions.
ARTICLE 16
DEFAULTS BY LANDLORD
16.1 LANDLORD’S LIABILITY. If Landlord fails to perform any of the covenants, provisions or conditions it is required to perform under this Lease within thirty (30) days after Landlord receives Notice from Tenant (or if more than thirty (30) days is reasonably required because of the nature of the default, if Landlord fails to begin to cure the default within the thirty (30)-day period and thereafter fails to diligently prosecute such cure to completion), then Landlord shall be liable to Tenant for all damages sustained by Tenant as a direct result of Landlord’s breach and Tenant shall not be entitled to terminate this Lease as a result thereof and Tenant shall have no right to offset or abate rent except to the extent this Lease specifically provides offset rights to Tenant. Tenant expressly understands and agrees that any judgment against Landlord resulting from any default or other claim under this Lease shall be satisfied only out of the net rents, profits and other income actually received by Landlord from the operation of the Shopping Center, and Tenant shall have no claim against Landlord (as Landlord is defined in Section 12.2) or any of Landlord’s personal assets for satisfaction of any judgment with respect to this Lease. No officer, employee, advisor, trustee, director, beneficiary, shareholder, or manager of Landlord shall be liable for any liability under this Lease.
16.2 CURE BY ASSIGNEE. If any part of the Premises is at any time subject to a first deed of trust, and this Lease or the Rents due from Tenant hereunder are assigned by Landlord to a trustee or beneficiary under a deed of trust (“Assignee” for purposes of this Article 16 only) and Tenant is given Notice of the assignment, including the post office address of Assignee, then Tenant shall also give Notice of any default by Landlord to Assignee, specifying the default in reasonable detail and affording Assignee a reasonable opportunity to cure the default on behalf of Landlord.
-12- |
ARTICLE 17
SUBORDINATION, ATTORNMENT AND TENANT’S CERTIFICATE
17.1 SUBORDINATION. This Lease is subject and subordinate to (a) the lien of any deed of trust or the interest of any lease in which Landlord is the lessee (and to all advances made or to be made upon the security of any of the foregoing), and (b) to matters of public record applicable to the Shopping Center, including any covenants, conditions, restrictions, easements and ground leases (the documents referred to in clauses (a) and (b), including amendments, are collectively referred to as the “Agreements”). Tenant agrees that it will not violate the terms of the Agreements. Tenant acknowledges that a beneficiary of a deed of trust or a lessor of Landlord may elect to cause the lien of the deed of trust or leasehold interest to be subordinate to this Lease. Subject to such election, if the Agreements are not of record on the Lease Date, then this Lease shall automatically become subordinate to the Agreements upon recordation so long as the Agreements do not prevent Tenant from using the Premises for the Permitted Use. Tenant agrees to execute and return to Landlord, within ten (10) days after Landlord delivers Notice, an agreement in recordable form subordinating this Lease to the Agreements in question. Tenant shall provide written consent to amendments to this Lease requested by the holder of a deed of trust or similar financing instrument encumbering Landlord’s fee interest in the Premises which do not alter the economic terms of this Lease or materially diminish the rights or materially increase the obligations of Tenant, and Tenant shall not otherwise unreasonably withhold its consent to any such requested amendment.
17.2 ATTORNMENT. If any foreclosure proceedings are begun, or in the event of the exercise of the power of sale under any deed of trust encumbering the Premises, or should a lease in which Landlord is the lessee be terminated, then Tenant shall attorn to the purchaser or lessor under such lease upon any foreclosure, sale or lease termination and recognize the purchaser or lessor as the “Landlord” under this Lease, provided that the purchaser or lessor shall acquire the Premises subject to this Lease.
17.3 TENANT’S CERTIFICATE. Tenant agrees, upon ten (10)-days’ Notice, to execute, and to cause all Guarantors to execute, and deliver to Landlord, a notarized statement in writing in substantially the form of Exhibit E or in such other form as may be required by Landlord’s beneficiary under a deed of trust or the purchaser of Landlord’s interest in the Shopping Center (“Tenant’s Certificate”).
ARTICLE 18
SECURITY DEPOSIT
Upon execution of this Lease, Tenant will pay Landlord the Security Deposit specified in Section 1.14. The Security Deposit will not bear interest and will be held by Landlord as security for Tenant’s faithful performance of all of Tenant obligations under this Lease. If Landlord applies all or part of the Security Deposit to the payment of Rent or to any loss or damage to Landlord due to Tenant’s Default, then within five (5) days after Notice, Tenant will deposit sufficient cash with Landlord to restore the Security Deposit to the amount originally deposited. If Tenant performs all of its obligations under this Lease, the Security Deposit or any remaining balance will be returned to Tenant within sixty (60) days after the expiration or earlier termination of this Lease. Tenant expressly waives any statutory right to the return of the Security Deposit earlier than said sixty (60)-day period and any and all rights it may have with respect to the Security Deposit under Section 1950.7(c) of the Civil Code of the State of California (or any similar, related or superseding provision of Law). Tenant waives the provisions of Section 1950.7 of the California Civil Code and all other provisions of law, now or hereafter in force, which provide that Landlord may claim from a security deposit only those sums reasonably necessary to remedy defaults in the payment of rent, to repair damage caused by Tenant or to clean the Premises, it being agreed that Landlord may claim all of Landlord’s damages under this Lease and California law including, but not limited to, any damages accruing upon termination of this Lease under Section 1951.2 of the California Civil Code.
ARTICLE 19
QUIET ENJOYMENT
As long as Tenant pays all of the Rent and performs all of the other terms and conditions of this Lease, Tenant shall peaceably and quietly hold and enjoy the Premises free from disturbance by Landlord or anyone claiming by, through or under Landlord; subject, however, to the rights of the parties as set forth in this Lease.
ARTICLE 20
NOTICES
All notices, demands, requests, approvals and other communications under this Lease (“Notice”) shall be in writing and shall be delivered to the intended party as provided herein. Any Notice with respect to an alleged Default or default by Landlord, exercise of options, Tenant’s Certificate, requests for subordination and non-disturbance agreements, relocation notices and other material requests shall only by given by personal delivery or by recognized national courier or overnight delivery service (such as Federal Express or UPS). All other Notices may also be given by U.S. registered or certified mail- return receipt requested. All Notices shall be addressed as set forth in Section 1.18, or to such other address or addresses as either party may designate by Notice to the other in accordance with this Article 20. Notices which are personally delivered shall be deemed given upon actual delivery or refusal of acceptance. Notices delivered by recognized national courier or overnight delivery service or by U.S. registered or certified mail-return receipt requested shall be deemed delivered as of the date of delivery (or attempted delivery or rejection) established by the U.S. Post Office’s return receipt or by the courier or overnight delivery service’s proof of delivery, as the case may be, but in no event later than two (2) business days after deposit thereof in a U.S. Mail Post Box or with a courier or delivery service.
-13- |
ARTICLE 21
MISCELLANEOUS
21.1 GENERAL. This Lease may be executed in one or more counterparts, each of which shall constitute an original and all of which shall be one and the same agreement. The parties agree to accept a digital image (including but not limited to an image in the form of a PDF, JPEG, GIF file, or other e-signature) of this Lease, if applicable, reflecting the execution of one or both of the parties, as a true and correct original. A waiver by a party of a breach of any provision of this Lease by the other party shall not be construed as a waiver of a later breach of the same provision. Except as limited by Article 16 or as specified to the contrary elsewhere in this Lease, the rights and remedies of the parties are cumulative and in addition to any rights and remedies not specified in this Lease. There are no other agreements or representations between the parties and this Lease supersedes and cancels any previous negotiations, representations, brochures, agreements and understandings, if any, between them. This Lease may not be amended except in writing signed by Landlord and Tenant. Where a term is defined in this Lease, as indicated by quotation marks and/or initial uppercase letters, that term shall have the defined meaning throughout this Lease, including any amendments and any addenda to this Lease. This Lease shall be governed by and construed in accordance with the Laws of the State of California and without regard to any conflicts of law principles. Landlord and Tenant agree to submit to the exclusive jurisdiction and venue of the courts located in the County of Orange, State of California with respect to any controversy, dispute, claim, action, litigation or similar proceeding arising under or related to this Lease. If any provision of this Lease or its application is found to be invalid or unenforceable, such determination shall not affect the other provisions of this Lease and they shall remain valid and enforceable. Except for the delivery of possession of the Premises to Tenant, time is of the essence of all provisions of this Lease. Tenant shall not record this Lease or any short form memorandum of this Lease. Any remedy available to Landlord pursuant to this Lease or otherwise shall survive the expiration or termination of this Lease.
21.2 SUCCESSORS. All of the rights and obligations of the parties under this Lease shall apply to (i) if an individual, their respective heirs, executors, administrators, and (ii) otherwise to their permitted concessionaires, successors, subtenants and assignees. If there is more than one (1) Tenant under this Lease, each shall be jointly and severally bound by all of the terms hereunder.
21.3 BROKERS. Each party represents to the other that there have been no brokers, finders or agents involved in this Lease and/or the negotiation of it except as specifically set forth in Section 1.17. Each party shall indemnify, defend and hold the other harmless from any claim for compensation, commission or charges by any broker, finder or agent resulting from any breach by such party of the foregoing representation. By the execution of this Lease, each of Landlord and Tenant hereby acknowledge and confirm (a) receipt of a copy of a Disclosure Regarding Real Estate Agency Relationship conforming to the requirements of California Civil Code 2079.16, and (b) the agency relationships specified in Sections 1.17(a) and 1.17(b) of the Basic Lease Provisions, which acknowledgement and confirmation is expressly made for the benefit of Tenant’s Broker identified in Section 1.17(b) of the Basic Lease Provisions. If there is no Tenant’s Broker so identified in Section 1.17(b) of the Basic Lease Provisions, then such acknowledgement and confirmation is expressly made for the benefit of the broker for the Landlord identified in Section 1.17(a) of the Basic Lease Provisions. By the execution of this Lease, Landlord and Tenant are executing the confirmation of the agency relationships set forth in Sections 1.17(a) and 1.17(b) of the Basic Lease Provisions.
21.4 TRANSFER OF LANDLORD’S INTEREST. If Landlord sells, exchanges or assigns this Lease (other than a conditional assignment as security for a loan), then it shall be relieved of all obligations accruing under this Lease from and after the date of transfer provided that Landlord’s successor-in-interest assumes such obligations from and after such date. No holder of a deed of trust to which this Lease is subordinate shall be responsible for the Security Deposit unless the holder of such deed of trust actually receives the Security Deposit from Landlord.
21.5 PAYMENT, LATE CHARGE AND SERVICE CHARGE. Initial Rent charges and payments required under the Lease shall be paid as directed by Landlord. Thereafter, Tenant shall pay Rent to Landlord using the “Tenant Payment Portal” established pursuant to Section 1.18, or to such other portal, address and/or person as Landlord may from time to time identify to Tenant. No payment by Tenant or receipt by Landlord of a lesser amount than the Rent required by this Lease shall be deemed to be other than a partial payment on account of the earliest due stipulated Rent, nor shall any endorsement or statement on any check or letter be deemed an accord and satisfaction and Landlord shall accept the check or payment without prejudice to Landlord’s right to recover the balance of the Rent or pursue any other remedy available to it. If Tenant fails to pay any Rent when due, (a) the unpaid amount shall bear interest at the prime interest rate charged by Wells Fargo Bank plus two (2) percentage points (but in no event to exceed the maximum lawful rate) (“Interest Rate”) from the date due until paid, and (b) Tenant shall pay to Landlord a late charge of Five Hundred Dollars ($500.00) for overdue Base Rent, and Two Hundred Fifty Dollars ($250.00) for overdue Percentage Rent and Additional Rent (“Late Charge”). In addition, in the event Tenant fails to submit any required documents, certificate, report, statement of Gross Sales, insurance policy or certificate as and when required in this Lease, Tenant shall pay to Landlord a “Service Charge” in the amount of One Hundred Dollars ($100.00) for each week or portion thereof that said failure continues. Tenant agrees that any Late Charge or Service Charge payable hereunder shall constitute liquidated damages. Payment of a Late Charge or Service Charge shall be due on the same date that the next Rent payment is due using the “Tenant Payment Portal” established pursuant to Section 1.18. Except where another rate of interest is specifically provided for in this Lease, any amount due from either party to the other which is not paid when due, shall bear interest from the due date at the Interest Rate specified in this Section 21.5. If no specific time is set forth for the payment of any money under this Lease, then such payment shall be required within ten (10) days after receipt of Notice. In no event shall Tenant be entitled to any credit or offset specifically permitted by this Lease, if Tenant, at the time in question is in Default of any of its obligations under this Lease.
21.6 LIENS. Tenant shall pay all costs for work performed by it or on its behalf and shall keep the Premises and the Shopping Center free and clear of mechanics’ liens or any other liens. Tenant shall give Landlord immediate Notice of any lien filed against the Premises or the Shopping Center as a result of any work performed by or on behalf of Tenant. Tenant shall immediately cause any lien to be discharged or removed of record by either paying the amount of the lien or recording a statutory lien release bond in an amount equal to one hundred twenty-five percent (125%) of the amount of the lien. If Tenant fails to do so, Landlord shall have the right, but not the obligation, in addition to all other rights and remedies available to Landlord, to either pay and discharge the lien, without regard to the validity thereof, or obtain and record a statutory lien release bond and to (a) collect from Tenant or (b) deduct from any amount payable by Landlord to Tenant under this Lease (i) all costs incurred by Landlord in paying and discharging such lien, or in obtaining the bond, and (ii) all expenses incurred by Landlord in connection with the lien, including attorneys’ fees and costs, recording fees and administrative costs and expenses. Landlord shall have the right to enter upon the Premises to post notices of non-responsibility as provided in Section 8444 of the California Civil Code or any successor Law.
21.7 INDEX. As used in this Lease, the term “Index” means The United States Department of Labor, Bureau of Labor Statistics Consumer Price Index for Urban Wage Earners and Clerical Workers, Los Angeles-Riverside-Orange County, CA Average, Subgroup “All Items,” (1982-1984 = 100). If at any time there shall not exist the Index in this format, Landlord shall substitute any official index published by the Bureau of Labor Statistics or successor or similar governmental agency as may then be in existence that shall, in Landlord’s opinion, be most nearly equivalent thereto. The sum to be increased in accordance with the provisions of the Index shall be increased using the following formula: The sum shall be increased by a percentage equal to the percentage increase, if any, in the Index published for the “Comparison Month” (as defined below) over the Index published for the “Base Month” (as defined below); provided, however, in no event shall said sum be less than that which was due immediately preceding the date of adjustment. For purposes of making the foregoing adjustments, the “Comparison Month” shall be the month ninety (90) days prior to the date of adjustment in question, and the “Base Month” shall be the month which is twelve (12) months prior to the corresponding Comparison Month.
-14- |
21.8 ALTERATIONS AND IMPROVEMENTS.
(a) After initially opening the Premises for business, without first obtaining the written approval of Landlord, Tenant shall not make or cause to be made to the Premises or the Tenant Utility Facilities any addition, renovation, alteration, reconstruction or change (collectively, “Alterations”) which would result in any of the following: (i) cost in excess of Ten Thousand Dollars ($10,000.00) in the aggregate, (ii) involve structural changes or additions, (iii) affect the exterior storefront, mechanical systems, fire sprinkler systems, exterior walls, floors, ceilings or roof of the Premises, are visible from outside of the storefront or change the design or the design elements of the Premises as originally approved by Landlord as part of Tenant’s Work, (iv) involve the erection of a mezzanine or an increase in the size of an existing mezzanine, (v) require or result in any penetration of the roof, demising walls or floor of the Premises or (vi) trigger any legal requirement upon Landlord to make any Alteration to the Shopping Center. In the event governmental approval, such as a building permit, is required in connection with any Alterations, then such Alterations shall be constructed in accordance with the provisions of Exhibit C. In such event, Tenant shall undertake the Design Approval Procedure specified in Part 3 of Exhibit C, provided, however, the initial date for delivery of the Preliminary Drawings shall not be fifteen (15) days from the Lease Date, but shall instead be fifteen (15) days prior to the date Tenant desires to commence the Alterations in question.
(b) Within ninety (90) days after the Commencement Date, Tenant shall submit to Landlord evidence of the book value of Tenant’s leasehold improvements, excluding items removable by Tenant at the expiration of the Term pursuant to this Section 21.8 (to the extent said leasehold improvements were paid for by Tenant, as evidenced by invoices and proofs of payment).
21.9 FORCE MAJEURE. Any prevention, delay or stoppage due to strikes, lockouts, labor disputes, acts of God, inability to obtain labor or materials or reasonable substitutes therefor, governmental restrictions, regulations, or controls, judicial orders, enemy or hostile governmental action, civil commotion, terrorist activities, fire or other casualty, epidemic or pandemic, and other causes (except financial) beyond the reasonable control of the party obligated to perform, shall excuse the performance by that party for a period equal to the prevention, delay or stoppage, except the obligations imposed with regard to the payment of Rent to be paid by Tenant pursuant to this Lease; provided the affected party gives the other party Notice within thirty (30) days of the event causing the prevention, delay or stoppage. Notwithstanding anything to the contrary contained in this Section 21.9, in the event any work performed by Tenant or Tenant’s contractor results in a strike, lockout and/or labor dispute, such action shall not excuse the performance by Tenant of the provisions of this Lease.
21.10 TERMINATION AND HOLDING OVER. This Lease shall terminate without further Notice upon the Expiration Date and Tenant shall have no right to thereafter extend or renew this Lease. Upon the Expiration Date, Tenant shall (i) peaceably and quietly surrender the Premises, including Tenant’s Work and all Alterations, in a good and broom-clean condition , except for reasonable wear and tear and any damage to the Premises which Tenant is not required to repair under Article 13, and (ii) remove all of its exterior signage and trade fixtures, furniture, equipment and signs from the Premises to the extent they are not permanently affixed, and immediately repair any damage resulting from such removal so as to leave the Premises in the condition required by this Section 21.10. Notwithstanding the foregoing, at Landlord’s option, Landlord may require Tenant to remove any Non-Conforming Improvements and repair any damage resulting from such removal. The term “Non-Conforming Improvements” means any special or unusual improvements or structures within the Premises, regardless of when constructed or installed by Tenant, that are not generally found at other retail stores in comparable shopping centers in Orange County, such as, by way of example and without limitation, unusual storefronts, alterations specific to Tenant’s trade dress, stairways, elevators, escalators, dumbwaiters, built-in safes, built-in vaults, fountains, pools, and similar installations. Upon the removal of Tenant’s exterior signage, Landlord shall have the right to restore the Building fascia to its original condition, or to cause Tenant to restore such Building fascia, in each case at Tenant’s sole cost and expense. Should Tenant hold over beyond the Expiration Date, the Base Rent for the first sixty (60) days of such holdover period shall be one and one- half (1-1/2) times the Base Rent payable for the twelve (12)-month period immediately preceding the Expiration Date, and after the expiration of such first sixty (60) days, the Base Rent shall increase to two (2) times the Base Rent payable for the twelve (12)-month period immediately preceding the Expiration Date. As long as the parties are in good faith negotiating a renewal or extension of this Lease, or a relocation of the Premises within the Shopping Center, no increase in Base Rent shall take effect until sixty (60) days after the Expiration Date. If Tenant fails to surrender the Premises upon the Expiration Date, then Tenant shall indemnify, defend and hold Landlord harmless from any loss or liability which may accrue therefrom including any claims made by any succeeding tenant founded on or resulting from Tenant’s failure to surrender. Acceptance by Landlord of any Base Rent, Percentage Rent or other charges after the Expiration Date shall not constitute consent to a holdover hereunder or result in a renewal of the Lease, and such occupancy by Tenant shall be deemed a month-to-month tenancy terminable by either party upon thirty (30) days’ Notice to the other.
21.11 ATTORNEYS’ FEES AND PROCESSING CHARGES. If either party institutes an action or proceeding against the other party relating to the provisions of this Lease, then the non-prevailing party in such action or proceeding shall reimburse the prevailing party for its actual attorneys’ fees, and all fees, costs and expenses (including any actual expert fees and court costs) incurred in connection with such action or proceeding, including any post-judgment fees, costs or expenses incurred on any appeal or in collection of any judgment. If Landlord prepares, reviews or executes any document relating to this Lease or the Premises at Tenant’s request, Tenant agrees to pay to Landlord (i) a reasonable processing charge in accordance with the schedule of charges from time to time established by Landlord, and (ii) Landlord’s reasonable attorneys’ fees and expenses incurred in connection therewith. Landlord may, at its option, require the payment of all or a portion of such charges and/or fees in advance.
21.12 WAIVER OF JURY TRIAL/JUDICIAL REFERENCE.
(a) Landlord and Tenant each acknowledges that it is aware of and has had the advice of counsel of its choice with respect to its right to trial by jury, and each party does hereby expressly and knowingly waive and release all such rights to trial by jury in any action, proceeding or counterclaim brought by either party hereto against the other (and/or against its officers, directors, employees, agents, or subsidiary or affiliated entities) on any matters whatsoever arising out of or in any way connected with this Lease, Tenant’s use or occupancy of the Premises, and/or any claim of injury or damage.
-15- |
(b) In the event that the jury waiver provisions of Section 21.12 (a) are not enforceable under California Law, then the provisions of this Section 21.12 (b) shall apply. Landlord and Tenant agree that any disputes arising in connection with this Lease (including but not limited to a determination of any and all of the issues in such dispute, whether of fact or of Law, and including any action where Tenant names as a party to any dispute an employee or agent of Landlord) shall be resolved (and a decision shall be rendered) by way of a general reference as provided for in Part 2, Title 8, Chapter 6 (§ 638 et. seq.) of the California Code of Civil Procedure, or any successor California statute governing resolution of disputes by a court appointed referee. Nothing within this Section 21.12 shall apply to an unlawful detainer action.
21.13 INABILITY TO DELIVER POSSESSION OF THE PREMISES. Notwithstanding anything to the contrary contained in this Lease, if for any reason not caused by Tenant Landlord is unable to deliver possession of the Premises to Tenant within twenty-four (24) months following the Lease Date, then either party may elect to terminate this Lease by giving thirty (30)-days’ Notice of such election to the other party. If such Notice is given, this Lease and the rights and obligations of the parties hereunder shall cease and terminate without the need for the execution of any further documents but, if Landlord requests, Tenant shall execute a document in recordable form confirming the termination of this Lease and of Tenant’s release and surrender of all right, title and interest in the Premises. If this Lease is terminated pursuant to this Section 21.13, neither party shall have any further liability regarding this Lease or its termination.
21.14 CERTIFICATIONS BY TENANT. Any reports, statements or other materials required to be certified by Tenant shall be certified by Tenant’s Chief Financial Officer, Tenant’s managing member or partner or by an independent certified public accountant.
21.15 FLOOR AREA. “Floor Area,” with respect to the Premises or any other leasable areas, means Landlord’s estimate of the total number of square feet of ground floor area therein, measured from the exterior faces of all exterior walls, service corridors and fire walls, and from the center line of the common demising walls separating the Premises from other premises. No deduction shall be made for columns or interior construction or equipment. Landlord shall have the right during the Term to remeasure the Floor Area of the Premises for accuracy. If an error is found, Landlord shall so certify to Tenant and this Lease shall be amended to reflect the actual Floor Area and corresponding “Base Rent,” “Breakpoint” and “Additional Rent” based on such actual Floor Area.
21.16 NO LIABILITY. In any case where Landlord’s consent is required, Landlord shall have no liability for damages to Tenant or to any third party if it is adjudicated that Landlord’s consent has been unreasonably withheld and such unreasonable withholding of consent constitutes a breach of this Lease or other duty to Tenant or any other person. In such event, Tenant’s sole remedy shall be to have Landlord’s consent be deemed given.
21.17 RELOCATION. Landlord shall have the right, upon at least ninety (90)-days’ Notice to Tenant (“Relocation Notice”), to relocate Tenant to other premises (“New Premises”) within the Shopping Center; subject, however, to the following terms and conditions: (a) The New Premises shall have approximately the same Floor Area as is contained in the Premises, (b) the New Premises shall be leased to Tenant on the same terms and conditions as provided in this Lease, except that there shall be a proportionate adjustment of Base Rent, Breakpoint and other charges based upon the Floor Area in the New Premises, (c) Landlord shall pay to Tenant, within thirty (30) days of the date Tenant initially opens for business in the New Premises, those expenses reasonably incurred by Tenant in connection with the relocation of Tenant’s personal property; provided, however, Tenant has first provided Landlord with an itemized list of these expenses (accompanied with copies of invoices and proofs of payment of same), and (d) Landlord shall either perform and pay, or cause Tenant to perform and Landlord shall pay for all reasonable costs of the leasehold improvements to be constructed at the New Premises and such leasehold improvements shall be substantially similar to the leasehold improvements in the Premises. In its Relocation Notice, Landlord shall specify which party shall be responsible for construction of the leasehold improvements in the New Premises and set forth a timetable for completion of the leasehold improvements in the New Premises. If the New Premises is unacceptable to Tenant for any reason, Tenant shall have the right as its sole and exclusive remedy, upon Notice to Landlord to be given within thirty (30) days after the Relocation Notice, to terminate this Lease on thirty (30)-days’ Notice. Landlord shall pay to Tenant, within sixty (60) days after said Notice and upon vacation of the Premises by Tenant, the unamortized book value of Tenant’s leasehold improvements, excluding items removable by Tenant at the expiration of the Term pursuant to Section 21.10. For purposes of calculating the book value of Tenant’s leasehold improvements, the amount of the Tenant Improvement Allowance, if any, shall be excluded
21.18 REPRESENTATION REGARDING SDN STATUS. Tenant represents to Landlord that Tenant, its officers, directors, employees, partners, members and/or other principals or owners of Tenant, and its guarantors of all or any portion of the Lease (collectively, “Tenant Parties”) are not listed as “Specially Designated Nationals and Blocked Persons” (“SDN”) on the list of such persons and entities issued by the U.S. Department of the Treasury’s Office of Foreign Assets Control (“OFAC”). In the event Tenant or any Tenant Party is or becomes listed as a SDN, Tenant shall be deemed in breach of this Lease and Landlord shall have the right to terminate this Lease immediately upon Notice to Tenant.
21.19 ENTIRE AGREEMENT/LIMITATION OF ACTIONS. It is understood that there are no oral or written representations, warranties or other agreements between the parties hereto affecting this Lease and this Lease supersedes and cancels any and all previous negotiations, arrangements, representations, brochures, agreements and understandings, if any, between Landlord and Tenant. Confirming the understandings and agreements described in this Section 21.19, Tenant agrees to execute and deliver to Landlord Tenant’s Estoppel in the form and content of Exhibit H attached hereto (“Tenant’s Estoppel”) concurrently with Tenant’s execution and delivery of this Lease. Any claim, demand, cause of action or defense of any kind by Tenant which is based on or arises in connection with, the negotiations prior to the execution of this Lease, or any asserted statement, representation, arrangement, agreement or understanding between Landlord and Tenant which is not expressly stated in this Lease shall be barred unless Tenant commences an action thereon, or interposes in a legal proceeding a defense based thereon, within six (6) months after the date of the asserted inaction or omission, or the date of the occurrence of the event or action to which the claim, demand, cause of action or defense relates, whichever applies.
-16- |
21.20 LIQUIDATED DAMAGES. With regard to any Section of this Lease having a specific remedy that is stated to constitute liquidated damages, then Landlord and Tenant acknowledge and agree that, with regard to event giving rise to such remedy: (i) Landlord’s damages would be impracticable and extremely difficult to quantify; (ii) the specified remedy is a reasonable estimate of the detriment that Landlord would suffer as a result thereof; (iii) the specified remedy is intended to constitute liquidated damages to Landlord pursuant to Sections 1671 and 1951.5 of the California Civil Code; and (iv) the specified remedy shall not excuse Tenant from such event nor deprive Landlord of the other remedies it may have hereunder or at Law or in equity by reason of such event.
21.21 PROP 65 DISCLOSURE. Under the California Safe Drinking Water and Toxic Enforcement Act of 1986 (“Proposition 65”), Landlord is required to warn Tenant of exposures to chemicals known to the State of California to cause cancer and birth defects or other reproductive harm that can occur at the property.
WARNING:
Entering this area can expose you to chemicals known to the State of California to cause cancer and birth defects or other reproductive
harm, including formaldehyde and toluene, from building materials containing urea-formaldehyde resins, such as insulation, pressed wood
materials, finishes, or adhesives, and from cleaning solvents. For more information go to www.P65Warnings.ca.gov.
Tenant shall bear responsibility for communicating Proposition 65 warnings for occupational exposures to its employees. Tenant shall bear responsibility for providing any and all consumer product exposure warnings and environmental exposure warnings related to The Premises and any products used or sold therein.
21.22 DISCLOSURE/CITY OF IRVINE OCCUPANCY DISCLOSURE FORM. Property in Southern California is subject to earthquake hazards of varying degrees depending on the nature, proximity and activity of nearby earthquake faults. Property within Woodbury has the potential for strong underground shaking due to fault activity, as do many other areas of California. Various earthquake faults run through and under the San Joaquin Hills area where Woodbury is located. The Newport/Inglewood Fault Zone, which is identified on State maps as an active fault zone, is located within the Pacific Ocean approximately one (1) to one and one-half (1.5) miles offshore. Pursuant to the City of Irvine master plan approval conditions applicable to the Shopping Center, Landlord is required to provide Tenant with a City of Irvine Occupancy Disclosure form for the Shopping Center. Tenant acknowledges receipt of such form.
21.23 GAS STATION DISCLOSURE. The service station located at the shopping center has experienced a release of gasoline from its underground storage tanks. Site soils and groundwater underlying the Premises have been impacted. The Orange County Health Care Agency and Santa Ana Region Water Quality Control Board are overseeing site assessment. The Irvine Company is unaware of any practical impediment to the use or occupancy of the Premises resulting from the discharge of petroleum products at the service station site.
21.24 ASBESTOS NOTIFICATION. The Shopping Center where the Premises are located may contain asbestos- containing building materials. Generally, asbestos does not pose any health hazard as long as it remains intact. However, asbestos fibers can be released into air when building materials containing asbestos are damaged or disturbed. A range of building materials may contain asbestos, including but not limited to: (1) sprayed or textured ceilings and walls; (2) stucco, plaster or drywall; (3) insulation on structural steel, boiler or hot water tanks; (4) insulation around furnaces or heating and air conditioning ducts; and (5) tile and sheet flooring, including linoleum or vinyl. Landlord consent is required prior to beginning any specified improvement, alteration, renovation or remodeling activities within the Premises as provided for in the Lease. Any such activities must also be undertaken by the Tenant in compliance with all applicable legal requirements, including those relating to asbestos. A range of building materials containing asbestos in the Premises was evaluated by an independent consultant, and accordingly, The Irvine Company does not warrant or guarantee the survey results. A full copy of the survey for the Shopping Center and Premises is available upon request.
(SIGNATURES ON NEXT PAGE)
-17- |
EXHIBIT A
SHOPPING CENTER SITE PLAN
This drawing is a general representation only and may not accurately reflect the status of building improvements on the Shopping Center or be a full depiction of the entire Shopping Center.

EXHIBIT A -1- |
EXHIBIT B
PREMISES SITE PLAN
This drawing is a general representation of the proposed Premises and should not be relied upon for the preparation of plans and specifications. Tenant and/or its representatives should field verify all measurements.
EXHIBIT B -1- |
EXHIBIT C
CONSTRUCTION PROVISIONS
| 1. | CONDITION OF PREMISES |
The Premises has been previously improved and is leased to Tenant by Landlord on an “AS IS” basis. No further obligation of Landlord exists with respect to construction within or about the Premises. Tenant shall design, obtain permits for and complete construction of Tenant’s Work during the 150-day period following the Delivery Notice as described in Section 1.7 of the Lease (the “Build-Out Period”).
Notwithstanding the fact that the Build-Out Period commences on the date of the Delivery Notice to Tenant, Landlord shall have no obligation to deliver exclusive physical possession of the Premises to Tenant until Tenant has satisfied all of the following requirements (“Delivery Requirements”): (i) delivered to Landlord evidence of the insurance coverage required by Exhibit F; (ii) paid all amounts then due under the Lease; and (iii) delivered to Landlord a copy of the building permit(s) for the construction of Tenant’s Work. In no event shall Tenant’s failure to meet the Delivery Requirements extend the Build-Out Period, and Tenant may be denied access to the Premises until such time that Delivery Requirements (i) and (ii) have been met. Prior to the commencement of Tenant’s Work, Tenant must (a) obtain Landlord’s approval of the Final Plans (as defined in this Exhibit C), and (b) obtain all government permits and approvals required to perform Tenant’s Work.
| 2. | TENANT’S WORK |
Tenant, having accepted the Premises as outlined in Part 1 of this Exhibit C, shall perform, at its sole cost and expense, all further work (“Tenant’s Work”) required by Landlord to remodel and build-out the Premises to a first-class condition. All improvements constructed at the Premises as part of Tenant’s Work shall be: (i) uniform in finish and materials; (ii) conform in all respects to Landlord’s “Tenant Design Criteria”, all applicable Laws, and the “Final Plans” (as hereinafter defined); and (iii) performed in accordance with the provisions of this Exhibit C. Tenant’s build-out of the Premises shall include installation of all furniture, fixtures and equipment required to conform with Permitted Use set forth in Section 1.10 of the Lease and shall include, without limitation, new floor finishes and wall finishes, a new ceiling, and the installation of high quality new fixtures, counters, display and/or merchandising racks. The build-out should be designed, furnished and decorated to a central theme consistent with the Permitted Use, and the quality of the build-out shall meet or exceed the build-out of Tenant’s latest prototype. Nothing contained herein shall require Landlord to allow or approve specific materials or finishes used in other store locations and Landlord reserves the right to disapprove specific designs, materials and finishes deemed inconsistent with the objectives of the Tenant Design Criteria provided to Tenant at Tenant’s request. Detailed requirements of certain portions of Tenant’s Work are set forth in Schedule 2 attached to this Exhibit C.
| 3. | DESIGN APPROVAL PROCEDURE |
| (a) | Preliminary Drawings: | ||
| (i) | Due to the special nature of the Shopping Center, before Tenant’s architect prepares and submits any “Preliminary Drawings” (defined in subparagraph (ii) below) to Landlord, Tenant’s architect shall perform a field inspection of the conditions on-site and in and around the Premises. Preliminary Drawings and Final Drawings shall be prepared in accordance with the as-built condition of Landlord’s building shell. | ||
| (ii) | Within fifteen (15) days from the Lease Date, Tenant shall submit to Landlord’s representative CD-ROM with tenant plans in single pdf file format (pdf file to be “to- scale” / full size set) showing intended design character and finishes of the Premises (“Preliminary Drawings”). The Preliminary Drawings shall meet the requirements set forth in Schedule 3 attached to this Exhibit C. Once approval on the Preliminary Drawings has occurred pursuant to the procedures hereinafter described, Tenant shall promptly commence preparation of the “Final Working Drawings” in accordance with Section 3(b) below. | ||
| (iii) | Within fifteen (15) days after Landlord receives the Preliminary Drawings, Landlord’s representative will either approve the Preliminary Drawings or return to Tenant’s architect/designer one (1) set of prints of the Preliminary Drawings, marked either “Approved as Noted” or annotated with any required modifications. | ||
| (iv) | Subject to clauses (v), (vi) and (vii) immediately hereafter, if Landlord returns the Preliminary Drawings to Tenant “Approved as Noted,” Tenant’s architect shall incorporate Landlord’s modifications into the Final Working Drawings. | ||
| (v) | If Landlord returns the Preliminary Drawings to Tenant with required modifications, Tenant may object to such modifications by delivering Notice to Landlord within ten (10) days after Tenant’s architect/designer receives the required modifications. Unless Tenant delivers such Notice to Landlord, Tenant will be deemed to have accepted and approved all modifications. | ||
EXHIBIT C -1- |
| (vi) | If Landlord returns the Preliminary Drawings to Tenant with required modifications and Tenant does not deliver Notice of object to such modifications as provided above, Tenant shall revise the Preliminary Drawings and resubmit them to Landlord for approval within ten (10) days after Tenant’s architect/designer receives notice of the modifications. | ||
| (vii) | If Tenant delivers Notice of its objection to any required modifications as provided above, Landlord will discuss the objections with Tenant and will work with Tenant to achieve Final Working Drawings that are acceptable to Landlord. If Tenant and Landlord are unable to agree on Preliminary Drawings, Landlord may terminate this Lease. | ||
| (b) | Final Working Drawings: | ||
| (i) | Tenant must engage an architect licensed in the State of California for the purpose of preparing the Final Working Drawings. Final Working Drawings must adhere to the approved Preliminary Drawings and shall meet the requirements set forth in Schedule 3 attached to this Exhibit C. | ||
| (ii) | Tenant shall submit Final Working Drawings on CD-ROM with tenant plans in single pdf file format for review (pdf file to be “to-scale” / full size set) to Landlord’s representative for approval within thirty (30) days after approval of the Preliminary Drawings. Final Working Drawings with incomplete or inadequate information or dimensional discrepancies will be rejected. | ||
| (iii) | Within fifteen (15) days after Landlord receives the Final Working Drawings, Landlord’s representative will either approve such drawings or return to Tenant’s architect/designer one (1) set of prints of the Final Working Drawings, marked with any comments and/or required modifications. | ||
| (iv) | If Tenant objects to any comments and/or required modifications, Tenant shall deliver Notice of such objection to Landlord within ten (10) days after the date Tenant’s architect/designer receives Landlord’s comments and/or modifications, as applicable. Unless Tenant delivers such Notice, Tenant will be deemed to have accepted and approved the comments and/or modifications provided by Landlord. | ||
| (v) | If Landlord returns the Final Working Drawings to Tenant with comments and/or required modifications and Tenant does not timely object as provided above, Tenant must revise the Final Working Drawings and resubmit them to Landlord for approval within fifteen (15) days after the date Tenant’s architect/designer receives Landlord’s comments and/or required modifications. | ||
| (vi) | If Tenant properly objects to any comments and/or required modifications as provided above, Landlord will discuss the objections with Tenant and will work with Tenant to achieve Final Working Drawings that are acceptable to Landlord. If Tenant and Landlord are unable to agree on Final Working Drawings, Landlord may terminate this Lease. | ||
| (vii) | Once approved, Landlord will stamp “Approved Final Working Drawings” and return them to Tenant’s architect/designer who made the submittal. | ||
| (c) | Final Plans: The approved Final Working Drawings will be considered the “Final Plans.” Tenant agrees to deliver to Landlord a complete CD-ROM containing the computer assisted drawings of the Final Plans. | ||
| (d) | Failure to Submit Plans: If Tenant fails to submit Preliminary Drawings or Final Working Drawings or revisions to them as and when required, the Build-Out Period for construction of the Premises as set forth in this Lease as time to complete Tenant’s Work will be reduced by the total number of days equal to the number of days the Preliminary Drawings or Final Working Drawings or the revisions thereto were delivered after they were required to be delivered. | ||
| (e) | Building Code Compliance and Non-responsibility of Landlord: Landlord will not check Tenant’s drawings for building code compliance. All Tenant drawings shall, however, be subject an engineering and safety review by Landlord to assess the potential safety impact of Tenant’s Work on other portions of the Shopping Center (the “Engineering and Safety Review”), which review may include, without limitation, the examination of (A) any penetrations through the roof or other structural elements of the Premises, (B) the transition points from the Common Areas to the Premises, and (C) any flooring, common walls or similar surfaces which may constitute a potential for leakage into other portions of the Shopping Center. Landlord’s approval of Final Working Drawings is not a representation that the drawings are in compliance with the requirements of governmental authorities, and it shall be Tenant’s responsibility to (i) meet and comply with all Federal, state and local code requirements, (ii) secure issuance of a building permit (and all other necessary permits) required in connection with Tenant’s Work, and (iii) pay for all fees assessed in connection with the permits. Landlord’s approval of Final Working Drawings does not constitute Landlord’s assumption of responsibility for their accuracy, sufficiency or efficiency and Tenant shall be totally responsible for such matters. | ||
EXHIBIT C -2- |
| (f) | Design Fees: Tenant shall pay all of Tenant’s design fees (including, without limitation, Tenant’s architect and sign designer). | ||
| (g) | Changes to Landlord’s Construction: If in connection with the performance of Tenant’s Work or otherwise Tenant desires to make any changes to the shell building construction or otherwise shown on Landlord’s plans, Tenant shall first submit to Landlord for Landlord’s review and approval plans and specifications as appropriate for the desired change prepared by Tenant’s architect and, if applicable, Tenant’s engineer. Tenant shall reimburse Landlord for all construction costs incurred by Landlord in connection with such change request, along with all necessary and reasonable architect’s, engineer’s and other consultants’ fees incurred by Landlord in connection with the review of any such plans and specifications within thirty (30) days after Landlord delivers to Tenant of an invoice therefor. Landlord may condition its review of any such changes on Tenant’s agreement in writing to pay the estimated or, if known, actual reimbursement amount. | ||
| 4. | CONSTRUCTION OF PREMISES | ||
| (a) | Commencement of Construction: Tenant shall commence construction of Tenant’s Work in accordance with the provisions of this Lease and shall carry such construction to completion with all due diligence. Before Tenant commences construction, Tenant shall submit to Landlord evidence reasonably satisfactory to Landlord of Tenant’s (and Tenant’s contractor’s) compliance with the insurance requirements set forth in Exhibit F attached to the Lease. Tenant understands and agrees that if Tenant will not be able to complete Tenant’s Work such that the Premises will be open for business to the public fully fixturized and stocked with merchandise on or before November 15, Landlord may require that Tenant may not commence any construction activities on or about the Premises until after January 1 (the “Black-Out Period”); provided, however, Tenant may commence and/or continue Tenant’s Work in and to the Premises during the Black-Out Period, subject to Tenant’s compliance with Landlord’s customary noise and/or life safety rules (as such rules may be modified to address any issues that may arise in connection with Tenant’s work within the Premises during the Black-Out Period) and the Tenant Criteria and construction guidelines previously delivered to Tenant, and further provided that all such activities are contained inside the Premises. | ||
| (b) | General Requirements: | ||
| (i) | All construction on the Premises must be in conformity to the Final Plans. The improvements may be inspected by Landlord or its architect who shall have the right to correct all work which does not comply with the Final Plans, at Tenant’s cost, or to require Tenant to correct all such work. Construction may not begin until Final Plans are at the job site. No changes, modifications or alterations to the Final Plans may be made without the written consent of Landlord. Tenant at all times shall maintain at the Premises the Final Plans approved by the local governing agencies and Landlord, together with all inspection cards for Tenant’s Work. | ||
| (ii) | Tenant’s contractor shall comply with all rules, regulations and applicable fees as described in the Tenant Design Criteria and Tenant Contractor Guidelines (collectively, the “Guidelines”) provided to Tenant at Tenant’s request. | ||
| (iii) | Tenant shall engage only contractors who are bondable, licensed contractors (licensed in the state of California), possessing good labor relations, capable of performing quality workmanship and working in harmony with Landlord and other contractors on the job. All work shall be coordinated with other Shopping Center work. | ||
| (iv) | Tenant shall perform or cause to be performed Tenant’s Work in compliance in all respects with all applicable Federal, state, county and city Laws. Without limiting the foregoing, Tenant acknowledges that it and its contractors, agents and employees shall comply with all Air Quality Laws, Water Quality Laws, drainage and Hazardous Materials Laws set forth in Section 8.3 of the Lease. | ||
| (v) | Tenant shall incorporate, in the performance of Tenant’s Work, best industry standards, techniques and technology to prevent and control conditions that could reasonably be expected to cause water intrusion or water damage within the Premises, including without limitation, observed or suspected instances of water intrusion or water damage (“Water Intrusion Conditions”) at, in, or on the Premises, and will comply with Landlord’s construction standards and requirements to prevent and control Water Intrusion Conditions at, in, or on the Premises. | ||
| (vi) | All required permits, approvals, licenses, authorizations and other permits in connection with the construction and completion of the Premises including, without limitation, building permits and conditional use permits, shall be obtained and all fees (both one- time and recurring) required in connection with the construction and completion of the Premises shall be paid for by Tenant. | ||
EXHIBIT C -3- |
| (vii) | Tenant shall apply and pay for all utility services including, but not limited to, temporary utilities. | ||
| (viii) | Tenant shall cause its contractor to provide warranties for not less than one (1) year against defects in workmanship, materials and equipment, commencing upon Landlord’s acceptance of Tenant’s Work. | ||
| (ix) | Tenant acknowledges that Tenant’s Work shall be subject to (1) Landlord’s inspection and approval to confirm that Tenant’s Work complies with the Final Plans, and (2) any requirement established by the Engineering and Safety Review. Any such inspection, approval or review shall not constitute an approval of architectural or engineering design, a review to determine the structural safety of Tenant’s Work or Tenant’s compliance with any building codes or other legal requirements, or otherwise constitute any assumption of liability or responsibility by Landlord or its agents or contractors. Tenant expressly acknowledges that no such inspection, approval or review shall in any way limit the obligations of Tenant or the rights of Landlord under this Lease, and, without limitation on the foregoing, Tenant’s obligations under that provision in the Lease regarding indemnity of this Lease shall apply to any claims (as more fully indicated in such indemnity provision) arising or alleged to have arisen in connection with the Premises, Tenant’s Work or the safety or structural integrity thereof. Tenant shall, at its sole cost and expense, perform any corrective measures required by Landlord or its agents or contractors in connection with any such inspection, approval or review. | ||
| (x) | Tenant shall have a superintendent from its general contractor’s office on site during all Tenant’s Work and fixturing work. Tenant’s general contractor’s superintendent or other responsible representative shall be on the job-site to receive all deliveries of materials, fixtures or merchandise. Landlord reserves the right to turn away any delivery arriving at the job-site if Tenant’s general contractor’s superintendent or other responsible representative is not present. Tenant shall stage its construction equipment and materials only in the staging area designated for such purpose by Landlord. | ||
| (xi) | Tenant shall cause its general contractor and subcontractors during the construction of Tenant’s Work to maintain the Premises and the job-site in a clean condition and to provide daily removal, cleanup and proper disposal of all trash, rubbish, refuse and construction debris and spoils generated by Tenant’s general contractor and subcontractors in dumpsters and other appropriate facilities, and not by depositing any such trash, refuse and construction debris and spoils within other tenant spaces or the job- site common areas. | ||
| (xii) | Tenant shall at all times cause its general contractor and subcontractors to comply with the requirements of Landlord’s general contractor and/or on-site construction manager with respect to protection of Landlord’s construction work in the Shopping Center which has been completed or is in progress, including paths of access within the Shopping Center for construction materials, equipment and labor, and coordination of sequencing of work. Tenant shall be responsible for any and all damage done by Tenant’s general contractor and/or subcontractors to any of Landlord’s buildings, other tenant premises, or the Shopping Center Common Areas. | ||
| (xiii) | Tenant’s general contractor shall provide its own temporary toilets within the Premises or in an area designated by Landlord. Any temporary toilets located by Tenant or Tenant’s general contractor or subcontractors other than in areas designated by Landlord may be removed at Tenant’s expense. Temporary toilets placed on-site by Landlord’s general contractor shall not be available for use by Tenant’s general contractor, subcontractors or other personnel. | ||
| (xiv) | Tenant shall arrange and pay for its own temporary power and telephone services from locations designated by Landlord. Existing on-site telephones shall not be available for use by Tenant’s general contractor, subcontractors or other personnel. If Tenant or Tenant’s general contractor or subcontractors use Landlord’s temporary power, Tenant shall pay Landlord and/or Landlord’s general contractor a reasonable fee for such use as set forth in the Guidelines. | ||
| (xv) | Tenant and/or Tenant’s general contractor shall provide all security deemed necessary by Tenant to protect Tenant’s Work, including furniture, fixtures and inventory, during the conduct of Tenant’s Work. Neither Landlord nor Landlord’s general contractor shall provide nor be responsible for any such security or protection. | ||
| (c) | Landlord’s Right to Perform Work: Landlord shall have the right, but not the obligation, to perform on behalf of and for the account of Tenant, any and all of Tenant’s Work which Landlord determines, in its sole discretion, should be performed immediately and on an emergency basis for the best interest of the Shopping Center, including, without limitation, work which pertains to structural components, mechanical, sprinkler and general utility systems, fire alarm systems, roofing and removal of unduly accumulated construction materials and debris. Tenant shall reimburse Landlord for all costs incurred by Landlord in the exercise of such right. | ||
EXHIBIT C -4- |
| (d) | Notice of Completion: Within ten (10) days after the completion of Tenant’s Work, Tenant shall deliver to Landlord a copy of a recorded Notice of Completion, executed by Tenant and Tenant’s general contractor, prepared in accordance with statutory requirements and otherwise in a form reasonably acceptable to Landlord (“Notice of Completion”). | |
| (e) | As-Built Drawings: Within thirty (30) days after the completion of Tenant’s Work, Tenant, at its expense, shall prepare a complete set of the Final Plans marked “As-Built Drawings” which fully indicate Tenant’s Work as constructed (“As-Built Drawings”). Tenant to provide As-Built Drawing in two formats on CD-ROM to Landlord: (1) Tenant plans in single pdf file format (pdf file to be “to-scale” / full size set), and (2) Tenant plans in Auto CAD format (.dwg file to be “to- scale”/full size set). | |
| 5. | CONSTRUCTION DEPOSIT | |
| Tenant’s contractors shall pay to Landlord as a construction security deposit and a signage security deposit (collectively, “Construction Deposit”) the amount specified in Lease Section 1.20 to cover (A) the cost to repair any and all damage done by Tenant’s general contractor and/or subcontractors and/or signage vendor/contractor to any of Landlord’s buildings, other tenant premises, or the Shopping Center Common Areas (including repatching and repainting) to the extent not repaired by Tenant or Tenant’s contractor and/or signage vendor/contractor, and (B) any costs incurred by Landlord to clean up the job-site and/or adjacent tenant spaces due to the failure of Tenant’s general contractor and subcontractors and/or signage vendor/contractor to comply with the maintenance requirements set forth in this Exhibit C (or Tenant’s proportionate share of such costs, which Landlord shall determine as a flat per-square-foot rate based on the Floor Area of the Premises). If Landlord incurs any such costs as described in the preceding sentence, Landlord shall deduct the amount thereof from the Construction Deposit. If the amount of such costs exceeds the Construction Deposit, Tenant shall promptly reimburse Landlord the excess amount upon receipt of an invoice reasonably detailing such costs. Landlord will return any unused Construction Deposit to Tenant’s contractor and/or signage vendor/contractor, as applicable within thirty (30) days after Landlord has confirmed the satisfactory completion of Tenant’s Work. | ||
| 6. | CONSTRUCTION BARRICADE | |
| Landlord shall construct a barricade enclosing Tenant’s Premises from the Common Area during Tenant’s construction and install signage and graphics advertising Tenant’s forthcoming opening thereon. All such work shall be done at Tenant’s expense. Within five (5) business days after Landlord’s delivery of an invoice to Tenant, Tenant shall pay Landlord (a) the cost of the barricade calculated at Eighty-Five Dollars ($85.00) per lineal foot, (b) the cost of signage and graphics, and (c) an administration fee equal to fifteen percent (15%) of the amounts described in (a) and (b) above. | ||
| 7. | CALIFORNIA CERTIFIED ACCESS SPECIALIST INSPECTION | |
| Pursuant to California Civil Code § 1938, Landlord hereby states that the Premises have not undergone inspection by a Certified Access Specialist (CASp) (defined in California Civil Code § 55.52(a)(3)). Pursuant to Section 1938 of the California Civil Code, Landlord hereby provides the following notification to Tenant: “A Certified Access Specialist (CASp) can inspect the subject premises and determine whether the subject premises comply with all of the applicable construction-related accessibility standards under state law. Although state law does not require a CASp inspection of the subject premises, the commercial property owner or lessor may not prohibit the lessee or tenant from obtaining a CASp inspection of the subject premises for the occupancy or potential occupancy of the lessee or tenant, if requested by the lessee or tenant. The parties shall mutually agree on the arrangements for the time and manner of the CASp inspection, the payment of the fee for the CASp inspection, and the cost of making any repairs necessary to correct violations of construction related accessibility standards within the premises.” If Tenant requests to perform a CASp inspection of the Premises, Tenant shall, at its cost, retain a CASp approved by Landlord (provided that Landlord may designate the CASp, at Landlord’s option) to perform the inspection of the Premises at a time agreed upon by the parties. Tenant shall provide Landlord with a copy of any report or certificate issued by the CASp (the “CASp Report”) and Tenant shall, at its cost, promptly complete any modifications necessary to correct violations of construction related accessibility standards identified in the CASp Report, which modifications will be completed as part of Tenant’s Work or as an Alteration, as applicable, notwithstanding anything to the contrary in this Lease. Tenant agrees to keep the information in the CASp Report confidential except as necessary for the Tenant to complete such modifications. | ||
EXHIBIT C -5- |
SCHEDULE 1 TO EXHIBIT C
INTENTIONALLY OMITTED
SCHEDULE 2 TO EXHIBIT C -1- |
SCHEDULE 2 TO EXHIBIT C
DESCRIPTION OF TENANT’S WORK
Tenant shall perform all of Tenant’s Work described in this Schedule, and shall provide all equipment, construction and engineering costs in connection with Tenant’s Work described in this Schedule, at Tenant’s sole cost and expense.
(a) Floors: Tenant shall provide all floor coverings in the Premises. Concentrated dead loads are not allowed without specific prior written approval of Landlord. Floor and/or wall penetrations may require prior review and x- rays, the cost of which Tenant shall pay. Tenant shall not make any penetrations into or through any shell building walls, floors and/or structural grade beams without Landlord’s prior written approval. Tenant must perform all floor slab and shell building wall reinstatement work in strict accordance with Landlord’s specifications.
(b) Walls: Tenant shall provide fire-rated gypsum wall board to attain a one-hour separation, or as per code, on all stud framed, perimeter and demising partitions from the finish floor slab to the underside of the roof structure, sealed tight. Tenant shall provide all interior partitions and wall coverings in the Premises.
(c) Ceiling: Tenant shall provide the ceiling in the Premises and any necessary catwalks or access panels.
(d) Electrical: Tenant shall provide all electrical work, equipment, fixtures and services for the Premises. Landlord shall provide a point of connection for temporary power for Tenant’s construction. Tenant shall be responsible for extension of temporary utilities from Landlord’s point of connection to the Premises, and all temporary utility consumption during Tenant’s construction.
(e) HVAC: Tenant shall distribute all HVAC within the Premises. All distribution, including duct work, electrical, thermostatic control, life safety system wiring and piping, shall be within the Premises. Tenant shall (i) connect electrical power to HVAC units and provide connections to the Tenant electrical panel; and (ii) condensate drain lines and connections to building system.
(f) Plumbing: Tenant shall provide all plumbing for the Premises, including all extensions and increases in sewer, grease and/or water lines serving the Premises beyond those provided by Landlord. Tenant shall perform all concrete slab reinstatement work pursuant to Landlord’s specifications. When provided by Landlord, Tenant shall make all necessary plumbing vent connections to Landlord’s common vent line within the Premises. No penetrations of the foundation shall be made for plumbing lines without Landlord’s prior written approval.
(g) Gas: Tenant shall be responsible for distribution from the centrally located manifold, if existing, of all gas service to and within the Premises and application for service from the applicable utility company. At Landlord’s option, Landlord shall have the right to install the gas service line from the manifold location to the Premises. In such event, Tenant shall reimburse Landlord for the actual cost of the installation of the gas service line within thirty
(30) days following Landlord’s delivery to Tenant of reasonable evidence of such cost.
(h) Telephone: Tenant shall provide all telephone equipment for the Premises and connections to the main panel board.
(i) Automatic Fire Sprinklers: Tenant shall make any additions or changes to the sprinkler system provided by Landlord necessary to meet the minimum criteria of Landlord or governmental or insurance standards. Where applicable, Tenant shall use one of the Landlord’s proprietary contractors for this work.
(j) Signs: Tenant shall provide signs in accordance with the Tenant Sign Criteria set forth in the Tenant Design Criteria, including all structural modifications, electrical connections to Landlord provided J-box, attachment to Landlord’s building and all patching, sealing and repainting. Tenant shall provide appropriate access and/or temporary catwalks for Tenant’s sign installation.
(k) Service/Fire Exit Doors: If required by applicable codes (including code requirements and/or changes or additions to Landlord’s Work triggered by Tenant’s use or exiting requirements, or Tenant’s interior floor plan layout), Tenant shall provide additional service doors and/or fire exit doors which shall conform with Landlord’s requirements and state and local codes. Tenant, at Tenant’s expense, shall contract with the Landlord’s structural engineer for review and concurrence of such revisions.
(l) Code-Related Items: Tenant shall be responsible for complying with any code requirements applicable to its type of business or its operation in the Premises, including code requirements and/or changes or additions to Landlord’s Work triggered by Tenant’s use or exiting requirements or Tenant’s interior floor plan layout.
(m) Fire Alarm System: Tenant is required to have a fire alarm monitoring system or life safety system, Tenant shall be responsible for all hook-ups and connections to Landlord’s fire alarm monitoring and life-safety systems, including the installation of designated phone lines and monitoring equipment, as required by Landlord, Landlord’s designated fire alarm contractor and state and local codes. Tenant must use Landlord’s designated fire alarm subcontractor.
(n) Sound and Vibration Mitigation: If, in Landlord’s discretion Tenant’s use is anticipated to generate sound and/or vibration beyond that which is typical for normal retail occupancies, then Tenant shall be required to provide an acoustic study for Landlord’s review and approval, and to install sound and vibration attenuation measures as part of Tenant’s Work in a manner consistent with such approved acoustic study to mitigate sound and/or vibration transmission to other premises or the Common Areas of the Shopping Center.
SCHEDULE 2 TO EXHIBIT C -2- |
(o) Outdoor Speakers: The use of outdoor speakers of any kind is prohibited without Landlord’s prior written approval. If outdoor speakers are proposed by Tenant, they must meet all requirements of Landlord.
(p) Roof: Penetrations through and/or attachments to roof structure must have prior written approval from Landlord and comply with all of Landlord’s roof specifications and installation procedures. Tenant must engage Landlord’s roofing consultant for all Tenant roof penetrations and any rooftop penetrations and roof repairs required shall be made using Landlord’s designated subcontractor. Any necessary roof structure modifications to accommodate Tenant’s rooftop equipment will be performed by Landlord, with all associated engineering and construction costs being at Tenant’s expense. Tenant shall pay such costs within thirty (30) days after Landlord delivers to Tenant reasonable evidence of such costs. The location of Tenant’s rooftop equipment will be subject to Landlord’s requirements for equipment screening as deemed necessary in Landlord’s sole discretion.
(q) Outdoor Dining Areas: If Tenant’s Premises includes the exclusive use of an Outdoor Dining Area, Tenant shall, at Tenant’s sole cost and expense, install the patio in accordance with Landlord’s patio criteria.
(r) Exhaust and Makeup Air Systems: Tenant’s kitchen exhaust and make-up air duct systems must be constructed in fire rated shaft enclosures in accordance with all governmental and local code requirements. Any proposed shaft enclosures penetrating adjacent tenant or Common Area spaces, either above or next to the Premises, are subject to Landlord’s prior written approval of Tenant’s detailed plans and equipment specifications for such penetrating shaft enclosures. At Landlord’s option, Landlord may designate dedicated shaft locations for Tenant’s exhaust and make-up air systems. Tenant shall be responsible for bringing all necessary ductwork and fire rated enclosures for its equipment to the designated shaft location, as well as completing its ductwork and the shaft enclosure at the designated location.
(s) Rooftop Equipment: Landlord, at its option, may allow Tenant to install additional rooftop mechanical and/or kitchen equipment on the roof area above the Premises, subject to Landlord’s prior written approval of Tenant’s detailed plans and equipment specifications (which approval may be given or withheld in Landlord’s sole discretion). The location of Tenant’s rooftop equipment will be subject to Landlord’s requirements for equipment screening and kitchen exhaust air purification systems, as deemed necessary in Landlord’s sole discretion. Tenant shall install all necessary equipment, such as scrubbers, necessary to protect the roof from damage resulting from Tenant’s grease. Any and all grease related rooftop equipment (“Grease Equipment”) shall be designed and installed in accordance with the Rooftop Grease Design and Installation Criteria included in the Tenant Design Criteria (“Rooftop Grease Criteria”). Tenant shall maintain all Grease Equipment pursuant to the Rooftop Grease Criteria. Tenant shall also be responsible for any code mandated fire suppression systems required in connection with the installation of the Grease Equipment. Landlord may, in its sole and absolute discretion, implement a program for the maintenance and management of the Grease Equipment and/or grease waste at the Shopping Center under which Tenant will participate in and pay for the cost of design, installation, connection, replacement, operation, and maintenance thereof.
(t) Grease Storage Facility and Cleaning Facility: Tenant’s Work shall include (i) construction of an area within the enclosed portion of the Premises for the purpose of storing all grease generated from the operation of Tenant’s business (“Grease Storage Facility”), which Grease Storage Facility shall include a vacuum system to transfer cooking oil from the cooking areas to a grease storage device in the Grease Storage Facility. The Grease Storage Facility shall be constructed and maintained using best industry standards, techniques and technology to provide for grease containment and disposal, and such installation shall be in accordance with the Tenant Design Criteria; and (ii) construction of a water-tight area within the enclosed portion of the Premises for the washing of all mats, the steam cleaning of grease containers and for the similar cleaning of any other restaurant equipment, utensils or other items used in the operation of Tenant’s business in the Premises (“Cleaning Facility”). Such Cleaning Facility shall be constructed and maintained using best industry standards, techniques and technology to provide for containment and disposal of liquids in compliance with all Water Quality Laws and such installation shall be in accordance with the Tenant Design Criteria.
(u) Grease Interceptor and Grease Waste Line. Tenant shall, as part of Tenant’s Work, connect the Premises to the grease-waste line stubbed to the Premises. Tenant shall have the right to use the grease interceptor (to which said grease waste line is connected) on a non-exclusive basis and Landlord shall maintain or enter into a service contract for the maintenance of the grease interceptor and grease waste line, and Tenant shall pay Landlord, as Additional Rent, upon billing (a) all costs incurred by Landlord in connection therewith, plus an administrative fee equal to fifteen percent (15%) of such costs, if the grease interceptor is not used by other tenants, or (b) a proportionate share of such costs allocated among all tenants using such grease interceptor based on such tenants’ respective Floor Area if the grease interceptor is used by other tenants.
(v) Air Scrubber: Tenant shall also be required to submit its mechanical, structural drawings to Landlord’s consultants, ACT Air Cleaning Technology, to determine whether Tenant will be required to install a smoke and odor pollution control unit (“PUC”) that eliminates any potential smoke and/or odor nuisance (“Emissions”). In the event that Landlord’s consultants determine that a PUC is required, then Tenant shall install a PUC approved by Landlord, and Tenant shall work with Landlord’s consultants, ACT Air Cleaning Technology, to design the PUC, including completing appropriate studies and questionnaires to determine the final design of the PUC. Tenant shall be responsible to obtain all permits, including, but not limited to, structural, electrical, mechanical, fire and AQMD (if required).
SCHEDULE 2 TO EXHIBIT C -3- |
SCHEDULE 3 TO EXHIBIT C
DRAWINGS
A. Provisions Regarding All Drawings.
1. Except for sign details described in paragraph C.7 below, Tenant shall prepare all drawings showing a scale of ¼” = 1’0”.
2. All drawings shall include a key title sheet with project, building, premise information and site plan showing location of the Premises within the Shopping Center.
3. Tenant shall incorporate into any plans for construction of the Premises best industry standards, techniques and technology to prevent and control any Water Intrusion Conditions at, in or on the Premises.
B. Preliminary Drawings. Preliminary Drawings shall include the following:
1. Architectural floor and reflected ceiling plans indicating interior design concept.
2. Architectural interior elevations details keyed to the layout plans.
3. Architectural exterior elevation and section details keyed to the layout plans, including any graphics, lighting and signage and indicating all materials and finishes. Exterior elevations shall be rendered in color. Elevations should include existing context (i.e., partial elevations of retail spaces) and should be drawn full height to top of building.
4. Preliminary finish schedule including all colors and materials to be used keyed to color and materials sample board.
5. Architectural roof outline plan with tenant improvement equipment/penetrations noted.
6. Architectural demolition plan.
7. Preliminary utility service load estimates (electrical, HVAC tonnage, gas and water) if Tenant anticipates that its load requirements are going to be in excess of Landlord’s utility services pursuant to Exhibit C.
8. All exterior signage is considered integral to the design and is required to be submitted with preliminary elevations. Provide a separate submittal for all exterior signage. Tenant’s sign vendor is required to submit shop drawings which include site plan showing store location, architectural elevation to scale showing all sign related dimensions, sign elements section details, and details of required building penetrations for signage attachment and methods of patching/weatherproofing such penetrations.
C. Final Working Drawings. Final Working Drawings consist of the preliminary design plans and engineered plans (i.e. MEP’s, Structural, Civil, Landscape). Tenant can submit its Tenant Improvement plans on a CD-ROM with the plan sheet size to scale in a PDF file format. Tenant shall prepare Final Working Drawings in a CADD reproducible format and shall include, but not be limited to, the following:
1. Engineered floor plans indicating storefront construction materials, colors and finishes as well as sliding door track location (if required), location of partitions and type of construction, placement of merchandising fixtures and toilet room locations indicating placement of plumbing and fixtures.
2. Engineered reflected ceiling plans indicating ceiling materials, various heights, location of all light fixtures, their manufacturer’s name and catalog number, lamps to be used and mounting (recessed, surface, etc.), location of sprinkler heads and HVAC grilles.
3. Engineered exterior storefront elevation and section details keyed to the layout, including any graphics, lighting and signage and indicating all materials and finishes. Exterior elevations shall be rendered in color. Elevations should include existing context (i.e., partial elevations of retail spaces) and should be drawn full height to top of building.
4. Engineered interior elevations, sections and details keyed to the engineered layout sufficient for construction.
5. Complete interior and exterior finish schedule including all colors and materials to be used keyed to color and materials sample board.
6. Samples and color chips of the actual materials or charts firmly attached to illustration boards and clearly labeled.
7. Sign details showing an architectural scale indicating elevation and section views, letter style and size, all colors and materials, methods of illustration, color of illuminate and voltage requirements. Tenant’s sign vendor is required to submit shop drawings which include site plan showing store location, architectural elevation to scale showing all sign related dimensions, sign elements section details, and details of required building penetrations for signage attachment and methods of patching/weatherproofing such penetrations.
8. Engineered mechanical drawings, including electrical, HVAC, plumbing and automatic fire sprinklers prepared by licensed engineers or firms licensed to prepare such drawings.
9. Engineered electrical and/or mechanical drawings must indicate total connected electrical loads and panel schedules, HVAC cooling requirements, water service capacity requirements and natural gas service requirements (if needed). Mechanical plans must indicate the operating weights and locations of any additional Tenant provided rooftop mechanical equipment.
10. Specifications not shown on drawings should be submitted on 8-1/2” x 11” paper, four (4) sets.
11. Landlord reserves the right to require mock ups of any materials, finishes, colors, special signs or lighting.
SCHEDULE 3 TO EXHIBIT C -1- |
SCHEDULE 4 TO EXHIBIT C
REIMBURSEMENT
Provided (a) Tenant has paid to Landlord all amounts owing to Landlord pursuant to this Lease as of the date reimbursement is to be made, (b) Tenant is not otherwise in Default of any other term or condition of this Lease as of such date, and no event has occurred which, given the passage of time or the giving of notice or both, could be declared a Default under this Lease, (c) the Premises are lien-free and eighty-five (85) days have expired from the recordation of the Notice of Completion, and (d) Landlord has approved, in advance, the scope of work and terms of any negotiated contract for Tenant’s Work, then within thirty (30) days after the date requirements 1 through 7 below are satisfied, Landlord will reimburse to Tenant the lesser of (i) the total amount of out-of-pocket costs paid by Tenant for Tenant’s Work (specifically excluding floor coverings, signs, movable fixtures, permit fees and plan review fees), and (ii) $60.00 per square foot of the Floor Area of the Premises (“Tenant Improvement Allowance”):
1. Tenant has delivered to Landlord unconditional final lien waivers and releases, in statutory form, for all contractors, subcontractors and material suppliers who performed work or supplied materials in connection with the completion of Tenant’s Work; provided, however, Tenant is not required to deliver lien waivers from material suppliers whose construction materials were purchased through Tenant’s general contractor or subcontractor(s).
2. Tenant has submitted to Landlord a copy of all building permits with all required inspections completed and all required governmental sign-offs executed. Tenant to provide copies of building permit cards and other jurisdictional permit cards with the inspector’s final acceptance (final sign-off).
3. Tenant has completed Tenant’s Work and opened for business to the public in the Premises.
4. Tenant has delivered to Landlord a copy of the recorded Notice of Completion.
5. Tenant has delivered to Landlord a Certificate of Occupancy for the Premises.
6. Tenant has submitted to Landlord invoices, AIA G702/G703 payment applications, and proofs of payment for Tenant’s Work (specifically excluding floor coverings, signs, movable fixtures, permit fees and plan review fees) which evidence Tenant’s expenditure of the amount requested. Proofs of payment examples are copies of cashed checks or wire transfers along with an invoice or an AIA G702/G703 payment application.
7. Tenant has submitted to Landlord As-Built Drawings. Tenant to provide As-Built Drawing in two formats on CD-ROM to the Landlord: (1) Tenant plans in single pdf file format (pdf file to be “to-scale”/full size set), and (2) Tenant plans in Auto CAD format (.dwg file to be “to-scale”/full size set).
For at least three (3) years after the date of completion of Tenant’s Work, Tenant shall maintain complete and accurate books and records of expenditures for Tenant’s Work in accordance with generally accepted accounting principles. At any time within said three (3)-year period and upon at least fifteen (15) days’ prior Notice to Tenant, Landlord may cause an audit to be made of all such books and records relating to expenditures for Tenant’s Work at the Premises or at Tenant’s offices in the state in which the Premises are situated.
In addition to all other remedies which Landlord may have pursuant to this Lease, Landlord may recover from Tenant the reasonable cost of its audit and withhold or recover all amounts to be paid or previously paid to Tenant if
(i) the audit discloses that Tenant reported to Landlord material erroneous expenditures which were not in fact made, or reported material erroneous amounts of any expenditure or of the expenditures in the aggregate; or (ii) Tenant fails to maintain complete and accurate books and records of these expenditures. The occurrence of (i) or (ii) above shall constitute a material Default under this Lease.
Landlord has agreed to provide Tenant with the Tenant Improvement Allowance based, in part, (a) on Tenant’s agreement to occupy the Premises for at least the initial Term of this Lease, thereby allowing the amortization of the Tenant Improvement Allowance over such period, and (b) because of Tenant’s specific Permitted Use set forth in Section 1.10 of this Lease that fits Landlord’s desired tenant-mix for the Shopping Center. Therefore, as a material inducement to agree to reimburse to Tenant the Tenant Improvement Allowance, and as a matter specifically bargained for between Landlord and Tenant, upon either (i) the early termination of this Lease prior to the expiration of the Term or (ii) any Assignment (defined in Section 10.1), on or before the effective date of such termination or of such Assignment, Tenant shall repay to Landlord the unamortized portion of the Tenant Improvement Allowance paid to Tenant as of the intended effective date of the termination or the proposed Assignment, based upon amortization in accordance with generally accepted accounting principles consistently applied. In addition, if this Lease is terminated or Tenant makes an Assignment before Landlord pays any Tenant Improvement Allowance (or installment(s) of it), Landlord’s obligation to pay (or make any further payment) of Tenant Improvement Allowance shall terminate and Tenant shall have no further right to payment of any Tenant Improvement Allowance.
SCHEDULE 4 TO EXHIBIT C -1- |
EXHIBIT D
GROSS SALES
DEFINITION: “Gross Sales” means the gross selling price of all food and beverage items, merchandise, goods or services sold, provided, delivered or rented, in or from the Premises by Tenant, its subtenants, licensees and concessionaires, whether for cash or on credit and whether made by store personnel, telephone, electronic communication (including without limitation orders received through the internet), or by machines or other technology based systems, as well as any membership fees and any business interruption or loss of income insurance proceeds attributable to lost sales revenue received by Tenant. All sales originating at the Premises shall be considered made and completed from the Premises even though bookkeeping or payment of the account is transferred to another location for collection or filling of the order and actual delivery of the merchandise is made from another location. Each installment sale, credit sale or layaway sale shall be treated as a sale for the full cash price at the time of such sale or deposit.
Excluded from the definition of Gross Sales are the following: (i) interest or other charges paid by customers to Tenant for the extension of credit; (ii) receipts from vending machines used solely by Tenant’s employees; (iii) sales taxes, excise taxes or gross receipts taxes imposed by the government upon the sale of merchandise or services, but only if collected from customers separately from the selling price and paid directly to the taxing agency; (iv) sales of gift certificates or cards at the Premises until they are redeemed for merchandise provided; however gift certificates or cards purchased elsewhere and redeemed at the Premises shall be included in Gross Sales; and (v) proceeds from the sale of fixtures, equipment or property which are not stock in trade.
For purposes of calculating Percentage Rent only, Gross Sales shall be reduced by the following to the extent previously reported as Gross Sales: (i) the selling price of all merchandise returned by customers and accepted for full credit; and (ii) the amount of bad debts and bad checks resulting from sales made from the Premises, after Tenant has made its customary collection efforts and written off such amounts as uncollectible, provided that the total bad debts and uncollectible amounts which may be deducted from Gross Sales for any particular year shall not exceed one percent (1%) for such year, and shall in any event be limited to amounts actually written off for Tenant’s accounting purposes during such year, and if such amounts are subsequently collected, such amounts shall be included in Gross Sales in the applicable month and year in which they were collected.
FORM OF GROSS SALES STATEMENT:
Note: Signature constitutes certification that the information contained in this statement is true, accurate and complete. If Tenant is a corporation, this statement must be signed by an authorized representative of Tenant. We encourage you to send as much detailed information as practical to support your calculations; however, in addition to documentation normally provided IT IS ESSENTIAL THAT THIS FORM BE COMPLETED AND RETURNED to ensure that all rental information is properly recorded to your account.
ALTERNATE FORM OF GROSS SALES STATEMENT: As an alternative to the foregoing form, Tenant may submit its statement of Gross Sales online through the Merchant Portal at: www.shopirvinecompany.com.
EXHIBIT D -1- |
EXHIBIT E
TENANT’S CERTIFICATE
| TENANT: ___________________________________________________________________________________ |
| PREMISES: __________________________________________________________________________________ |
| LEASE DATE: _______________________________________________________________________________ |
| EXECUTION DATE: ___________________________________________________________________________ |
THIS TENANT’S CERTIFICATE is executed as of the Execution Date by Tenant who is currently the Tenant under that certain lease (“Lease”) dated as of the Lease Date by and between IRVINE ORCHARD HILLS RETAIL LLC, Landlord, and YOSHIHARU IRVINE, a California corporation, Tenant, with respect to the Premises. Unless otherwise defined in this Tenant’s Certificate, all capitalized terms shall have the meanings given those terms in the Lease.
Subject to any exceptions and qualifications stated in Paragraph 19, below, Tenant represents, warrants, certifies and states each of the following:
1. It has reviewed the financial statements provided to Landlord (“Financial Statements”).
2. Based on its knowledge, the Financial Statements do not contain any untrue statements of material fact or omit to state a material fact necessary to understanding Tenant’s financial condition.
3. Based on its knowledge, the Financial Statements fairly present the financial condition of Tenant.
4 The Lease is presently in full force and effect and has not been amended, supplemented, modified or otherwise changed, except pursuant to the following written amendments:
5. All work and improvements to the Premises required by the Lease to have been performed by Landlord have been completed in accordance with the provisions of the Lease and Tenant has accepted and taken possession of the Premises.
6. Landlord has satisfied all commitments, if any, made to induce Tenant to enter into the Lease, and to the best of Tenant’s knowledge, is not in any respect in default in the performance by Landlord of its obligations under the Lease.
7. Tenant fully occupies the Premises and is not in any respect in Default or breach of the Lease and has not assigned, sublet, transferred or hypothecated its interest under the Lease.
8. Tenant has no Notice or knowledge of any prior assignment, hypothecation or pledge of rents, of the Lease.
9. Tenant knows of no event under the terms of the Lease which would constitute a Default by Tenant or a default by Landlord.
10. The original term of the Lease is ___ years with a Commencement Date of ____________, and an Expiration Date of ______________.
11. Neither Tenant nor Landlord has begun any action, or given or received any Notice for the purpose of termination of the Lease.
12. Tenant has paid the Base Rent, the Percentage Rent (if any) and all other monetary obligations under the Lease through _______, 20__.
13. There is no period of free rent, Rent abatement or reduction, except as set forth in the Lease or below, and Landlord has not given or conceded to Tenant any other concessions, abatements or compromises with respect to the Rent obligations under the Lease, nor has Landlord waived or purchased any other period of free rent, Rent abatement or reduction.
14. There are no offsets or credits against or defenses to payment of any monetary obligations payable under the Lease, and Tenant has made no payments to Landlord as a security deposit or advance or prepaid Rent except for the Security Deposit set forth in the Lease and any payments made no earlier than ten (10) days prior to the date upon which such payment is due.
15. Tenant’s address for Notice is set forth in the Lease.
16. This Tenant’s Certificate and the Lease are legal, valid, binding and enforceable obligations of Tenant. Tenant has reviewed and understands this document and has had an opportunity to discuss this with counsel or has waived such opportunity.
17. Other than cleaning and office supplies used and stored on the Premises in the normal course of Tenant’s business, Tenant does not use, handle, store or dispose of any Hazardous Materials (as defined in the Lease) in connection with Tenant’s business in the Premises.
18. Tenant hereby acknowledges and agrees that the Lease is a lease of real property in a “shopping center,” as such term is used in 11 U.S.C. § 365(b)(3), and further acknowledges and agrees that Landlord shall be entitled to all the protections afforded a landlord under 11 U.S.C. § 365(b)(3).
19. The representations set forth above are subject to the following exceptions and qualifications (if none stated, all representations shall be taken as without exception or qualification):
_________________________________________________________________________
_________________________________________________________________________
EXHIBIT E -1- |
IN WITNESS WHEREOF, Tenant executed this Tenant’s Certificate as of the Execution Date.
| TENANT: | ||
| _________________________, | ||
| a _______________________ | ||
| By: | ||
| Name: | ||
| Title: | ||
| ACKNOWLEDGED AND AGREED TO THIS ____ DAY OF ________________, 20 __. | ||
| GUARANTOR: | ||
| _________________________, | ||
| a _______________________ | ||
| By: | ||
| Name: | ||
| Title: | ||
EXHIBIT E -2- |
EXHIBIT F
INSURANCE REQUIREMENTS
1. TENANT’S INSURANCE. Tenant shall maintain in full force and effect a policy or policies of insurance as follows:
A. Commercial general liability insurance with coverage limits of not less than the combined single limit for bodily injury, personal injury, death and property damage liability per occurrence specified in Section 1.13 of the Lease or the current limit carried by Tenant, whichever is greater, insuring against any and all liability of the insureds with respect to the Premises or arising out of the maintenance, use or occupancy of the Premises or related to the exercise of any rights of Tenant pursuant to this Lease, subject to increases in amount as Landlord may reasonably require from time to time. All such commercial general liability insurance shall include, but not be limited to, personal injury, blanket contractual liability, products/completed operations, broad form property damage liability and independent contractor’s liability. Each commercial general liability policy shall also include a severability of interests clause. If alcoholic beverages are served, sold, consumed or obtained in the Premises, Tenant shall also purchase and maintain liquor liability insurance. Additionally, Tenant shall be required to purchase and maintain automobile liability insurance covering all owned, non-owned and hired automobiles.
B. Worker’s compensation coverage as required by Law, including employer’s liability coverage, with a limit of not less than One Million Dollars ($1,000,000.00) and waiver by Tenant’s insurer of any right of subrogation against Landlord by reason of any payment pursuant to such coverage.
C. Business interruption or loss of income insurance in amounts sufficient to insure Tenant’s business operations for a period of not less than one (1) year.
D. Plate glass insurance covering all plate glass on the Premises at full replacement value. Tenant shall have the option either to insure this risk or to self-insure.
E. Insurance covering all of Tenant’s Work, the Premises, Tenant’s leasehold improvements and alterations permitted under Section 21.8(a) of the Lease in an amount not less than their full replacement cost, and insurance covering all of Tenant’s trade fixtures, merchandise and personal property in an amount not less than their full replacement value from time to time. All such insurance coverage shall provide protection against perils covered in the ISO “Causes of Loss – Special Form” (form CP 10 30) and sprinkler leakage. Any policy proceeds shall be used for the repair or replacement of the property damaged or destroyed unless the Lease shall cease and terminate under the provisions of Article 13 of the Lease.
F. Such additional insurance coverage and limits as Landlord deems reasonable and which are consistent with California insurance practices for protecting persons and property.
2. INSURANCE DURING CONSTRUCTION. Prior to the commencement of Tenant’s Work, Tenant shall, at its sole cost and expense, obtain and, if required by Landlord, cause its contractors to obtain and keep in full force throughout the construction of Tenant’s Work:
A. Commercial general liability insurance as described in Section 1.A above.
B. Workers compensation as described in Section 1.B above.
C. A builder’s risk policy covering those perils insured in the “Causes of Loss – Special Form” (form CP 10 30) in an amount acceptable to Landlord and sufficient to cover the full contract value of all Tenant renovations and/or improvements.
3. POLICY FORM. All policies of insurance required of Tenant herein shall be issued by insurance companies with a current A.M. Best’s Rating of A or better and a Financial Rating of at least VIII, both as rated in the most current “Best’s Rating Guide,” and which are qualified to do business in the State of California. All such policies, except for the Worker’s Compensation coverage, shall name and shall be for the mutual and joint benefit and protection of Landlord and all entities controlling, controlled by, or under common control with Landlord, together with their respective owners, shareholders, partners, members, divisions, officers, directors, employees, representatives and agents, and all of their respective successors and assigns as additional insureds. The policies described in Parts C and E in Section 1 above shall also name Landlord and Landlord’s beneficiary (ies) under a deed of trust as loss payees. Certified copies of the policy declaration page and the following endorsements shall be delivered to Landlord prior to Tenant, its agents or employees entering the Premises for any purpose: (a) an endorsement confirming Landlord’s and its relate parties additional insured status as provided herein, an endorsement evidencing waiver of subrogation as provided by this Exhibit F, and (b) an endorsement confirming that all policies required of Tenant herein shall be endorsed to read that such policies are primary policies and any insurance carried by Landlord or Landlord’s property manager shall be noncontributing with such policies. Thereafter, certified copies of the policy declaration page and all required endorsements for the renewal policies required hereby shall be delivered to Landlord within thirty (30) days prior to the expiration of the term of each policy. Alternatively, Landlord may require certificates evidencing such insurance. All policies of insurance delivered to Landlord must contain a provision that the company writing the policy will give to Landlord thirty (30) days’ prior Notice of any cancellation or lapse or the effective date of any reduction in the amounts of insurance. No policy required to be maintained by Tenant shall have a deductible greater than Twenty-Five Thousand Dollars ($25,000.00) unless approved in writing by Landlord.
EXHIBIT F -1- |
4. BLANKET POLICIES. Notwithstanding anything to the contrary contained in this Exhibit F, Tenant’s obligation to carry insurance may be satisfied by coverage under a so-called blanket policy or policies of insurance; provided, however, that the coverage afforded Landlord will not be reduced or diminished and the requirements set forth in this Lease are otherwise satisfied by such blanket policy or policies.
5. INCREASED PREMIUMS DUE TO USE OF PREMISES. Tenant shall not do any act in or about the Premises which will tend to increase the insurance rates upon the Premises or the Shopping Center of which the Premises are a part. Tenant agrees to pay to Landlord, upon demand, the amount of any increase in premium for insurance resulting from Tenant’s use of the Premises, whether or not Landlord shall have consented to the act on the part of Tenant. If Tenant installs upon the Premises any electrical equipment which constitutes an overload of the electrical lines servicing the Premises, Tenant, at its own expense, shall make whatever changes are necessary to comply with the requirements of the insurance underwriters and any appropriate governmental authority.
6. LANDLORD’S INSURANCE. Landlord, at all times from and after the Lease Date, shall maintain the following types of insurance in effect during the Term, with or without deductibles and in amounts and coverages as may be determined by Landlord in its discretion (subject, however, to reimbursement as set forth in the Lease):
A. General liability for bodily injury and property damage arising from Landlord’s ownership, management, use and/or operation of the Common Areas and/or the Shopping Center with coverage limits equal or greater to those Tenant is required to maintain in accordance with Tenants Insurance requirements set forth in Section 1 of this Exhibit F.
B. Property insurance, subject to standard exclusions (such as, but not limited to, earthquake and flood exclusions), covering the Shopping Center. In addition, Landlord may, at its election, obtain insurance coverages for such other risks as Landlord or its Mortgagees may from time to time deem appropriate, including earthquake and terrorism.
The insurance described in clauses A and B above, together with any deductibles, are collectively referred to as “Landlord’s Insurance” and such insurance may be carried by inclusion within the coverage of any blanket policy or policies of insurance maintained by Landlord; provided, however, that the coverage afforded will not be reduced or diminished by reason of the use of such blanket policies of insurance.
7. WAIVER OF SUBROGATION. Landlord and Tenant each waive any rights each may have against the other on account of any loss or damage occasioned to Landlord or Tenant, as the case may be, their respective property, the Premises or its contents, or to other portions of the Shopping Center arising from any liability, loss, damage or injury caused by fire or other casualty for which property insurance is carried or required to be carried pursuant to the Lease. The insurance policies obtained by Landlord and Tenant pursuant to this Lease shall contain a provision waiving any right of subrogation which the insurer may otherwise have against the other party. If Landlord has contracted with a third party for the management of the Shopping Center, the waiver of subrogation by Tenant herein shall also run in favor of such third party.
8. FAILURE BY TENANT TO MAINTAIN INSURANCE. If Tenant refuses or neglects to secure and maintain insurance policies complying with the provisions of this Exhibit F, Landlord may secure the appropriate insurance policies and Tenant shall pay, upon demand, the cost of same to Landlord.
9. SUFFICIENCY OF COVERAGE. Neither Landlord nor any of Landlord’s agents make any representation that the types of insurance and limits specified to be carried by Tenant under the Lease are adequate to protect Tenant. If Tenant believes that any such insurance coverage is insufficient, Tenant shall provide, at its own expense, such additional insurance as Tenant deems adequate. Nothing contained herein shall limit Tenant’s liability under the Lease.
EXHIBIT F -2- |
EXHIBIT G
RULES AND REGULATIONS
1. HOURS OF BUSINESS. From and after the Commencement Date, Tenant shall keep the entire Premises continuously open for business during the days and hours established by Landlord from time to time for the Shopping Center generally, including all holidays except New Year’s Day, Easter Day, Thanksgiving Day, and Christmas Day. Subject to Section 21.9 of the Lease, Tenant shall pay to Landlord a One Hundred Dollar ($100.00) per hour charge for each hour that Tenant fails to continuously remain open for business during the hours previously established by Landlord, which payment shall constitute liquidated damages. Tenant shall have its window displays, exterior signs and exterior advertising displays adequately illuminated continuously during those hours and days that the Premises are required to be open for business to the public.
2. HOURS FOR DELIVERIES. Tenant shall use its best efforts to require all deliveries, (exclusive of United Parcel Service and U.S. Postal Service), loading, unloading and services to the Premises to be completed between 7:00 a.m. and 10:00 a.m. each day. All deliveries, loading, unloading and services to the Premises shall be accomplished within the service areas of the Shopping Center.
3. OPERATION OF BUSINESS IN PREMISES. Tenant shall keep the Premises in a neat and clean condition, free from any objectionable noises, odors or nuisances, shall operate its business without unreasonable noise or vibration emanating from the Premises, and shall comply with all applicable Laws of any governmental authority having jurisdiction over the Premises or the Shopping Center in connection with Tenant’s operation of its business in the Premises:
4. PARKING. If Tenant or its employees fail to park in the area designated for employee parking, Tenant shall be liable for a fee of Fifty Dollars ($50.00) per day for each violation, which fee shall constitute liquidated damages.
5. PROHIBITED ACTIVITIES. Smoking of any kind (including vapor products) and the possession, use, growth or distribution of marijuana or any marijuana derivative is strictly prohibited within the Premises. Tenant shall not sell merchandise from vending machines or allow any coin or token operated vending machine on the Premises, except those exclusively used by employees and pay telephones provided for the convenience of its customers. Unless otherwise specifically permitted in Section 1.10 of the Lease, Tenant shall not install or operate in or about the Premises any type of automated teller machine (ATM) for the disposition of cash or conducting banking transactions or for the sale of event tickets. Tenant shall not display or sell merchandise or allow carts, signs or any other object to be stored or to remain outside the Premises. Tenant shall not erect any aerial or antenna on the roof, exterior walls or any other portion of the Premises. Tenant shall not solicit or distribute materials in the Common Area. Tenant shall neither conduct on the Premises, nor advertise with respect to the Premises, any liquidation, “going out of business,” distress, “lost our lease” or similar sale.
6. ADVERTISING MEDIA. Tenant shall not affix upon the Premises any sign, advertising placard, name, insignia, trademark, descriptive material or other like item unless approved by Landlord in writing, in advance, in accordance with Exhibit C. No advertising medium shall be utilized by Tenant which can be heard or seen outside the Premises including flashing lights, searchlights, loudspeakers, phonographs, radios or televisions. Tenant shall not display, paint or place any handbill, bumper sticker or other advertising device on any vehicle parked in the Common Area. Tenant shall not distribute any handbills or other advertising matter in the Shopping Center. Notwithstanding the above, Tenant shall erect signs at its own expense in accordance with (a) the sign criteria established by Landlord, (b) the Final Plans, and (c) all applicable Laws and shall maintain these signs in good condition and repair during the Term.
7. FOOD. Unless this Lease expressly permits the use of the Premises for a restaurant facility, no cooking shall be allowed on the Premises.
8. AMENDMENT/CONFLICT OF RULES WITH LEASE. Tenant acknowledges that Landlord may, from time to time, establish further reasonable and non-discriminatory rules and regulations for the Shopping Center or amend existing ones, and Tenant shall abide by such rules and regulations. If there is any conflict, inconsistency or ambiguity between these Rules and the Lease, the provisions of the Lease shall control.
9. RESTAURANT MAINTENANCE. Tenant acknowledges and understands that material consideration for Landlord to enter into this Lease is Tenant’s full cooperation with the Landlord in maintaining the Shopping Center in first-class, neat and safe condition; therefore, in addition to the other covenants of Tenant concerning maintenance of the Premises set forth in the Lease, Tenant shall, at its sole cost and expense:
(i) Be responsible for promptly cleaning any spills or waste in the Shopping Center occasioned by off-premises consumption of food and other items sold by Tenant;
(ii) If Landlord undertakes routine steam cleaning of sidewalk areas within the vicinity of the Premises and additional steam cleaning is required in the vicinity of the Premises (including the rear or service area), Tenant agrees that it shall be responsible for ensuring that the additional steam cleaning is completed and shall pay the cost of same directly to the cleaning service or if Landlord provides for such additional steam cleaning, pay Landlord upon billing, as Additional Rent;
EXHIBIT G -1- |
(iii) Bus, clean and wash daily all tables, chairs, dividers, fixtures, floor mats and furnishing used by Tenant with an approved detergent-disinfectant type solvent to prevent build-up from food spills, dust, dirt and other substances (floor mats shall not be washed or cleaned outside the Premises in the Common Area);
(iv) If found by Landlord to be necessary, install and operate mechanical, chemical or electrical insect or other traps, approved by Landlord in writing as to location and type, to eliminate all insects, gnats, flies, and rodents from the Premises;
(v) (a) Cause both interior and exterior trash containers to be emptied on a regular basis (but not less than once a day) prior to their overflowing (unless Tenant provides, at its sole cost and expense, refrigerated trash storage for the Premises) and if required by Landlord, substitute a replacement container during the time period when containers are being emptied; (b) keep and maintain all trash containers in a clean and attractive condition and appearance at all times; (c) utilize three (3) millimeter polyurethane liners in all lined trash containers; (d) ensure that all trash bags are securely fastened and sealed tightly with a tie wrap to prevent any leaking of garbage before the bags are removed from the Premises to the outside dumpster or other disposal facility, including, without limitation, by using two trash bags (“double-bagging”) to collect trash; and (e) utilize trash transport equipment, such as “gray whales”, approved by Landlord to transport Tenant’s trash and garbage to dumpsters or other disposal facilities provided by Landlord for the disposal of garbage and waste products;
(vi) Utilize dumpsters or other disposal facilities provided by Landlord for the disposal of garbage and waste products and dispose of all grease waste as required under the Lease. Tenant shall be solely responsible for the payment of any penalties assess by any governmental authorities for any violation of any provision under the Lease and, in the event Tenant violates this subparagraph (vi), Tenant shall be assessed a penalty of $100.00 for each violation, and such amount shall be payable within ten (10) days after Landlord’s billing for same;
(vii) Cause signs (approved in advance by Landlord in writing) to be posted requesting patrons, invitees and employees of Tenant to deposit waste in the trash containers;
(viii) Break down all cardboard boxes prior to disposing of same in the designated cardboard compactors and use Tenant’s best efforts to operate the cardboard compactor each time cardboard is disposed of into the container; and
(ix) Strictly comply with Landlord’s existing signage policy prohibiting Tenant from placing any unapproved permanent or temporary signage, posters, and/or advertisement on the storefront glass or windows of the Premises.
EXHIBIT G -2- |
EXHIBIT H
TENANT’S ESTOPPEL
| TENANT: | YOSHIHARU IRVINE, a California corporation |
| PREMISES: | 3935 Portola Parkway, Irvine, CA 92602 |
| LEASE DATE: | December 30, 2020 |
THIS TENANT’S ESTOPPEL is executed concurrently with the execution by Tenant of the above-referenced Lease with IRVINE ORCHARD HILLS RETAIL LLC, as Landlord, for the lease of the above-referenced Premises.
Tenant represents, warrants, certifies and states each of the following:
1. Except as specifically provided in the Lease, no representation, warranty, or other agreement whatsoever has been made to Tenant, its agents, representatives or other party acting for or on behalf of Tenant, by Landlord, its agents, representatives, or other party acting for or on behalf of Landlord, in connection with the Lease, the Shopping Center, the Premises or otherwise, including, without limitation, any representation, warranty or other agreement concerning prospective tenants for the Shopping Center, gross sales (or other planned income) which Tenant should expect to realize from the Premises, exclusivity rights, rights of first refusal or offer for other premises within the Shopping Center, or other representations, warranties or agreements, express or implied, which would induce Tenant to execute the Lease or lease the Premises.
2. Tenant agrees and acknowledges that Landlord is relying on Tenant’s execution of this Tenant’s Estoppel and would not execute the Lease but for Tenant’s execution hereof.
3. Tenant has reviewed and understands this document and has had an opportunity to discuss this with counsel or has waived such opportunity.
EXHIBIT H -1- |
EXHIBIT I
GUARANTEE OF LEASE
THIS GUARANTEE OF LEASE (“Guarantee”) is given this December 30, 2020, by JAMES CHAE and JENNIE Y. CHAE, husband and wife (collectively, “Guarantor”) to IRVINE ORCHARD HILLS RETAIL LLC (“Landlord”).
I. RECITALS
A. A certain lease of even date herewith has been, or will be, executed by and between Landlord, and YOSHIHARU IRVINE, a California corporation (“Tenant”), for certain premises located in Orchard Hills Shopping Center, in the City of Irvine, State of California (“Lease”).
B. Landlord requires as a condition to its execution of the Lease that the undersigned guarantee the full performance of the obligations of Tenant thereunder.
C. Guarantor is desirous that Landlord enter into the Lease with Tenant.
NOW, THEREFORE, in consideration of the execution of the Lease by Landlord, Guarantor hereby unconditionally guarantees the full performance of each and all of the terms, covenants and conditions of the Lease to be kept and performed by Tenant, as hereinafter provided.
II. TERMS
A. GUARANTOR’S OBLIGATIONS:
Guarantor unconditionally guarantees to Landlord the full and complete performance of each and all of the terms, covenants and conditions of the Lease and any amendments thereto required to be performed by Tenant including, but not limited to, the payment of all Base Rent, Percentage Rent and Additional Rent (as each term is defined in the Lease), and any and all other charges, sums, damages or liabilities to accrue or become due from Tenant to Landlord pursuant to the terms of the Lease (“Monetary Sums”). Guarantor further agrees to pay to Landlord interest on any and all sums due and owing Landlord by reason of Tenant’s failure to pay all sums due and owing at the highest rate allowed by Law at the time of payment.
B. LANDLORD’S RIGHTS:
1. ENFORCEMENT. Landlord has the right, in the event of any failure of Tenant to pay the Monetary Sums or perform any other obligation under the Lease, to proceed against Tenant or Guarantor, or both, and to enforce against Guarantor or Tenant, or both, any and all rights that Landlord may have to the payment of the Monetary Sums or the performance of such other obligations. Guarantor understands and agrees that its liability under this Guarantee shall be primary and that, in any right of action which may accrue to Landlord under the Lease or this Guarantee, Landlord, at its option, may proceed against Guarantor without having taken any action or obtained any judgment against Tenant.
2. DELAY IN ENFORCEMENT. Guarantor understands and agrees that any failure or delay of Landlord to enforce any of its rights under the Lease or this Guarantee shall in no way affect Guarantor’s obligations under this Guarantee.
C. GUARANTOR’S WAIVERS:
Guarantor hereby waives:
1. Any and all notices, presentments and notices of nonpayment or nonperformance;
2. All defenses based upon any disability of Tenant, release of Tenant’s liability for any reason or any statute of limitations controlling obligations accruing under the Lease or this Guarantee;
3. Any and all rights it may have now or in the future to require or demand that Landlord pursue any right or remedy Landlord may have against Tenant or any third party;
4. Any and all rights it may have to enforce any remedies available to Landlord against Tenant now or in the future;
5. Any and all right to participate in any security deposit held by Landlord under the Lease now or in the future;
6. The right to require Landlord to proceed against Tenant, exhaust any security which Landlord now holds or may hold in the future from Tenant or pursue any other right or remedy available to Landlord; and
7. All rights and defenses that are or may become available to Guarantor by reason of Sections 2787 through 2855, inclusive, of the California Civil Code.
EXHIBIT I -1- |
D. CHANGES DO NOT AFFECT LIABILITY:
Guarantor understands and agrees that its obligations under this Guarantee shall not be affected in any way by any extension of time or other indulgence granted to Tenant, any amendment, modification, renewal or extension of the Lease, or any assignment or subletting of the Lease, and in no way shall any such occurrence release or discharge Guarantor from its obligations under this Guarantee. Guarantor agrees that its obligations under this Guarantee shall not be affected by Landlord’s failure to notify Guarantor of any default or failure to perform on the part of Tenant.
E. TENANT’S INSOLVENCY:
1. ASSUMPTION OF LIABILITY. Guarantor understands and agrees that, if Tenant becomes insolvent or is adjudicated bankrupt, whether by voluntary or involuntary petition, or if any bankruptcy action involving Tenant is commenced or filed, or if a petition for reorganization, arrangement or similar relief is filed against Tenant, or if a receiver of any part of Tenant’s property or assets is appointed by any court, Guarantor will pay to Landlord the amount of all accrued, unpaid and accruing Monetary Sums to the date when the trustee or administrator accepts the Lease and commences paying same; provided, however, at such time as the trustee or administrator rejects the Lease, Guarantor shall pay to Landlord all accrued, unpaid and accruing Monetary Sums under the Lease for the remainder of the Term.
2. LANDLORD’S OPTION. Pursuant to the provisions of Part II, Section E.1 above, at the option of Landlord as to the amounts owing for the unexpired term of the Lease if the Lease is rejected, Guarantor shall either:
a. Pay to Landlord an amount equal to the Monetary Sums which would have been payable for the unexpired term of the Lease reduced to its present day value; or
b. Execute and deliver to Landlord a new lease for the balance of the Term with the same terms and conditions as the Lease and with Guarantor as tenant thereunder.
3. EFFECT OF OPERATION OF LAW. Any operation of any present or future debtor’s relief act or similar act or Law or decision of any court shall in no way affect the obligations of Guarantor or Tenant to perform any of the terms, covenants or conditions of the Lease or of this Guarantee.
III. MISCELLANEOUS:
A. EXTENT OF OBLIGATIONS. Notwithstanding anything to the contrary in this Guarantee, it is understood and agreed that this Guarantee shall extend to any and all obligations of Tenant to Landlord under the Lease and any amendments to the Lease.
B. SUBROGATION. Guarantor understands and agrees that it shall have no right of subrogation against Tenant until such time as all of Tenant’s obligations to Landlord have been fully paid and discharged.
C. ASSIGNABILITY. This Guarantee may be assigned in whole or in part by Landlord upon written notice to Guarantor.
D. SUCCESSORS AND ASSIGNS. The terms and provisions of this Guarantee shall be binding upon and inure to the benefit of the successors and assigns of the parties hereto.
E. MODIFICATION OF GUARANTEE. This Guarantee constitutes the full and complete agreement between the parties hereto and it is understood and agreed that the provisions hereof may only be modified by a writing executed by the parties hereto.
F. NUMBER AND GENDER. As used herein, the singular shall include the plural and, as used herein, the masculine shall include the feminine and neuter genders.
G. CAPTIONS/HEADINGS. Any captions or headings used in this Guarantee are for reference purposes only and are in no way to be construed as part of this Guarantee.
H. INVALIDITY. If any term, provision, covenant or condition of this Guarantee is held to be void, invalid or unenforceable, the remainder of the provisions hereof shall remain in full force and effect and shall in no way be affected, impaired or invalidated.
I. JURISDICTION. The validity of this Guarantee and of any of its terms or provisions, and the rights and duties of the parties hereunder, shall be interpreted and construed in accordance with the Laws of the State of California.
J. ATTORNEYS’ FEES. In the event that either Landlord or Guarantor shall institute any action or proceeding against the other relating to the provisions of this Guarantee or the enforcement hereof, the party not prevailing in such action or proceeding shall reimburse the prevailing party for its actual attorneys’ fees, and all fees, costs and expenses incurred in connection with such action or proceeding, including, without limitation, any post- judgment fees, costs or expenses incurred on any appeal or in collection of any judgment.
EXHIBIT I -2- |
K. GUARANTEE OF PAYMENT AND PERFORMANCE. It is understood and agreed that this Guarantee is unconditional and continuing and is a guarantee of payment and performance and not of collection.
L. JOINT AND SEVERAL OBLIGATION. If Guarantor is more than one (1) person, the obligations of the persons comprising Guarantor shall be joint and several and the unenforceability of this Guarantee or Landlord’s election not to enforce this Guarantee against one (1) or more of the persons comprising Guarantor shall not affect the obligations of the remaining persons comprising Guarantor or the enforceability of this Guarantee against such remaining persons.
M. MARRIED GUARANTOR. If Guarantor is a married individual, Guarantor’s spouse must sign this Guarantee. The obligations under this Guarantee shall apply to each spouse, jointly and severally, on behalf of each of their marital, community and sole and separate property estates.
N. WAIVER OF JURY TRIAL/JUDICIAL REFERENCE.
(a) Landlord and Guarantor each acknowledges that it is aware of and has had the advice of counsel of its choice with respect to its right to trial by jury, and each party does hereby expressly and knowingly waive and release all such rights to trial by jury in any action, proceeding or counterclaim brought by either party hereto against the other (and/or against its officers, directors, employees, agents, or subsidiary or affiliated entities) on any matters whatsoever arising out of or in any way connected with the Lease, this Guarantee, Tenant’s use or occupancy of the Premises, and/or any claim of injury or damage.
(b) In the event that the jury waiver provisions of Section III. N.(a) are not enforceable under California Law, then the provisions of this Section III. N. (b) shall apply. Landlord and Guarantor agree that any disputes arising in connection with the Lease and/or this Guarantee (including but not limited to a determination of any and all of the issues in such dispute, whether of fact or of Law, and including any action where Tenant names as a party to any dispute an employee or agent of Landlord) shall be resolved (and a decision shall be rendered) by way of a general reference as provided for in Part 2, Title 8, Chapter 6 (§ 638 et. seq.) of the California Code of Civil Procedure, or any successor California statute governing resolution of disputes by a court appointed referee. Nothing within this Section III.N. shall apply to an unlawful detainer action.
EXHIBIT I -3- |
IN WITNESS WHEREOF, the undersigned have executed this Guarantee and made it effective on the date first written above.
| Addresses for Notices: | GUARANTOR | |
JAMES CHAE and JENNIE Y. CHAE, husband and wife, on behalf of their separate and community property interests, jointly and severally | ||
| James Chae | ||
| 15476 Canon Lane | James Chae | |
| Chino Hills CA 91709 | ||
| Jennie Y. Chae | ||
| Jennie Y. Chae |
EXHIBIT I -4- |
EXHIBIT J
MENU

EXHIBIT J -1- |
RETAIL LEASE
TENANT: YOSHIHARU IRVINE, a California corporation
SHOPPING CENTER: ORCHARD HILLS SHOPPING CENTER
TABLE OF CONTENTS
| PAGE | |
| ARTICLE 1 BASIC LEASE PROVISIONS | 2 |
| ARTICLE 2 LEASE OF PREMISES; RESERVATIONS | 4 |
| ARTICLE 3 RENT | 4 |
| ARTICLE 4 TENANT FINANCIAL DATA | 4 |
| ARTICLE 5 TAXES | 5 |
| ARTICLE 6 UTILITIES AND HVAC | 5 |
| ARTICLE 7 TENANT’S CONDUCT OF BUSINESS | 6 |
| ARTICLE 8 MAINTENANCE AND REPAIRS | 7 |
| ARTICLE 9 COMMON AREA | 8 |
| ARTICLE 10 ASSIGNMENT AND SUBLETTING | 9 |
| ARTICLE 11 PROMOTIONAL SERVICES | 10 |
| ARTICLE 12 INSURANCE AND INDEMNITY | 10 |
| ARTICLE 13 DAMAGE | 11 |
| ARTICLE 14 EMINENT DOMAIN | 11 |
| ARTICLE 15 DEFAULTS BY TENANT | 12 |
| ARTICLE 16 DEFAULTS BY LANDLORD | 12 |
| ARTICLE 17 SUBORDINATION, ATTORNMENT AND TENANT’S CERTIFICATE | 13 |
| ARTICLE 18 SECURITY DEPOSIT | 13 |
| ARTICLE 19 QUIET ENJOYMENT | 13 |
| ARTICLE 20 NOTICES | 13 |
| ARTICLE 21 MISCELLANEOUS | 14 |
EXHIBIT A - SHOPPING CENTER SITE PLAN
EXHIBIT B - PREMISES SITE PLAN
EXHIBIT C - CONSTRUCTION PROVISIONS
EXHIBIT D - GROSS SALES
EXHIBIT E - TENANT’S CERTIFICATE
EXHIBIT F - INSURANCE REQUIREMENTS
EXHIBIT G - RULES AND REGULATIONS
EXHIBIT H - TENANT’S ESTOPPEL
EXHIBIT I - GUARANTEE OF LEASE
EXHIBIT J - MENU
| -2- |


ELECTRONIC RECORD AND SIGNATURE DISCLOSURE
From time to time, Irvine Company (we, us or Company) may be required by law to provide to you certain written notices or disclosures. Described below are the terms and conditions for providing to you such notices and disclosures electronically through your DocuSign, Inc. (DocuSign) Express user account. Please read the information below carefully and thoroughly, and if you can access this information electronically to your satisfaction and agree to these terms and conditions, please confirm your agreement by clicking the ‘I agree’ button at the bottom of this document.
Getting paper copies
At any time, you may request from us a paper copy of any record provided or made available electronically to you by us. For such copies, as long as you are an authorized user of the DocuSign system you will have the ability to download and print any documents we send to you through your DocuSign user account for a limited period of time (usually 30 days) after such documents are first sent to you. After such time, if you wish for us to send you paper copies of any such documents from our office to you, you will be charged a $0.00 per-page fee. You may request delivery of such paper copies from us by following the procedure described below.
Withdrawing your consent
If you decide to receive notices and disclosures from us electronically, you may at any time change your mind and tell us that thereafter you want to receive required notices and disclosures only in paper format. How you must inform us of your decision to receive future notices and disclosure in paper format and withdraw your consent to receive notices and disclosures electronically is described below.
Consequences of changing your mind
If you elect to receive required notices and disclosures only in paper format, it will slow the speed at which we can complete certain steps in transactions with you and delivering services to you because we will need first to send the required notices or disclosures to you in paper format, and then wait until we receive back from you your acknowledgment of your receipt of such paper notices or disclosures. To indicate to us that you are changing your mind, you must withdraw your consent using the DocuSign ‘Withdraw Consent’ form on the signing page of your DocuSign account. This will indicate to us that you have withdrawn your consent to receive required notices and disclosures electronically from us and you will no longer be able to use your DocuSign Express user account to receive required notices and consents electronically from us or to sign electronically documents from us.
All notices and disclosures will be sent to you electronically
Unless you tell us otherwise in accordance with the procedures described herein, we will provide electronically to you through your DocuSign user account all required notices, disclosures, authorizations, acknowledgements, and other documents that are required to be provided or made available to you during the course of our relationship with you. To reduce the chance of you inadvertently not receiving any notice or disclosure, we prefer to provide all of the required notices and disclosures to you by the same method and to the same address that you have given us. Thus, you can receive all the disclosures and notices electronically or in paper format through the paper mail delivery system. If you do not agree with this process, please let us know as described below. Please also see the paragraph immediately above that describes the consequences of your electing not to receive delivery of the notices and disclosures electronically from us.
How to contact Irvine Company:
You may contact us to let us know of your changes as to how we may contact you electronically, to request paper copies of certain information from us, and to withdraw your prior consent to receive notices and disclosures electronically as follows:
To contact us by email send messages to: helpdesk@irvinecompany.com
To advise Irvine Company of your new e-mail address
To let us know of a change in your e-mail address where we should send notices and disclosures electronically to you, you must send an email message to us at helpdesk@irvinecompany.com and in the body of such request you must state: your previous e-mail address, your new e-mail address. We do not require any other information from you to change your email address..
In addition, you must notify DocuSign, Inc to arrange for your new email address to be reflected in your DocuSign account by following the process for changing e-mail in DocuSign.
To request paper copies from Irvine Company
To request delivery from us of paper copies of the notices and disclosures previously provided by us to you electronically, you must send us an e-mail to helpdesk@irvinecompany.com and in the body of such request you must state your e-mail address, full name, US Postal address, and telephone number. We will bill you for any fees at that time, if any.
To withdraw your consent with Irvine Company
To inform us that you no longer want to receive future notices and disclosures in electronic format you may:
i. decline to sign a document from within your DocuSign account, and on the subsequent page, select the check-box indicating you wish to withdraw your consent, or you may;
ii. send us an e-mail to helpdesk@irvinecompany.com and in the body of such request you must state your e-mail, full name, IS Postal Address, telephone number, and account number. We do not need any other information from you to withdraw consent.. The consequences of your withdrawing consent for online documents will be that transactions may take a longer time to process..
Required hardware and software
| Operating Systems: | Windows2000? or WindowsXP? | |
| Browsers (for SENDERS): | Internet Explorer 6.0? or above | |
| Browsers (for SIGNERS): | Internet Explorer 6.0?, Mozilla FireFox 1.0, NetScape 7.2 (or above) | |
| Email: | Access to a valid email account | |
| Screen Resolution: | 800 x 600 minimum |
| Enabled Security Settings: | |||
| ● | Allow per session cookies | ||
| ● | Users accessing the internet behind a Proxy Server must enable HTTP 1.1 settings via proxy connection |
** These minimum requirements are subject to change. If these requirements change, we will provide you with an email message at the email address we have on file for you at that time providing you with the revised hardware and software requirements, at which time you will have the right to withdraw your consent.
Acknowledging your access and consent to receive materials and conduct transactions electronically under California law.
To confirm to us that you can access this information electronically, which will be similar to other electronic notices and disclosures that we will provide to you, please verify that you were able to read this electronic disclosure and that you also were able to print on paper or electronically save this page for your future reference and access or that you were able to e-mail this disclosure and consent to an address where you will be able to print on paper or save it for your future reference and access. Further, if you consent to receiving notices and disclosures exclusively in electronic format on the terms and conditions described above, please let us know by clicking the ‘I agree’ button below.
By checking the I Agree box, I confirm that:
| ● | I can access and read this Electronic CONSENT TO ELECTRONIC RECEIPT OF ELECTRONIC CONSUMER DISCLOSURES document; and | |
| ● | I can print on paper the disclosure or save or send the disclosure to a place where I can print it, for future reference and access; and | |
| ● | Until or unless I notify Irvine Company as described above, I consent to receive from exclusively through electronic means all notices, disclosures, authorizations, acknowledgements, and other documents that are required to be provided or made available to me by Irvine Company during the course of my relationship with you. | |
| ● | I agree and consent that electronic signatures are acceptable for any transaction, agreement, document, disclosure and/or notice exchanged or sent via electronic means pursuant to this disclosure. | |
| ● | I agree that the laws of the State of California shall govern and apply, without reference to its or any other choice of law principals, to the information, transaction and/or documents exchanged and/or executed hereinunder, including without limitation the Uniform Electronic Transactions Act (Civil Code section 1633.1 et seq.). |